Vuokrataan toimistotilat - Helsinki
Kaivotalo, Kaivokatu 10, Keskusta, 00100 Helsinki #10782823
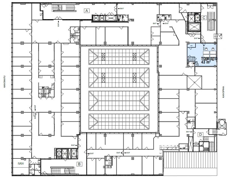
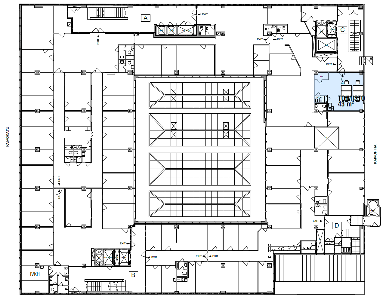
Todella siisti 43 m² pikkutoimisto keskeiseltä sijainnilta Kaivotalosta.
Osoite
Kaivokatu 10, 00100 Helsinki
Tilatyyppi
Toimistotilaa
43 m2
Pohjapiirros
Kiinteistö
Näppärä minitoimisto vuokrattavissa Kaivotalon 4. kerroksesta Helsingin ydinkeskustassa. Tilasta löytyy pieni varastohuone ja keittiönurkkaus sekä wc.
Arkkitehti Pauli Salomaan suunnittelema Kaivotalo valmistui tyylisuuntansa malliesimerkiksi vuonna 1955. Kaivotalon ensimmäisessä ja toisessa kerroksessa sijaitsee liiketiloja, ylemmät kerrokset toimivat toimistotiloina.
Kulkuyhteydet rakennukseen ovat Helsingin parhaat ja alueen palvelut loistavat.
Arkkitehti Pauli Salomaan suunnittelema Kaivotalo valmistui tyylisuuntansa malliesimerkiksi vuonna 1955. Kaivotalon ensimmäisessä ja toisessa kerroksessa sijaitsee liiketiloja, ylemmät kerrokset toimivat toimistotiloina.
Kulkuyhteydet rakennukseen ovat Helsingin parhaat ja alueen palvelut loistavat.
Vapautuu
Heti
Rakennusvuosi
1955
Kerros
4 / 6
Energiatehokkuusluokka
Ei lain edellyttämää energiatodistusta
Näkyvällä paikalla
Hissi
Ota yhteyttä
ScanReal Oy LKV
Opus Business Park
Hitsaajankatu 24
00810 Helsinki
info@scanreal.fi
Puh:
Näytä puhelinnumero
020 730 8830
Sopivat toimitilat yhdellä otolla!
Kartoitamme toimitilatarpeesi ja etsimme yrityksellesi parhaiten sopivat vapaat toimitilat. Koska vuokranantajat maksavat palvelumme, on tämä yrityksellesi veloituksetonta.
OTA YHTEYTTÄ - SOVI NÄYTTÖ!
Kaikki kohteemme eivät ole netissä, kerro tilatarpeesi niin kartoitamme vaihtoehdot.
Palvelumme on tilanhakijalle ilmainen
Pyydä lisätietoa
