Vuokrataan liiketilat - Tampere
Hämeenkatu 9, 33100 Tampere #10782739
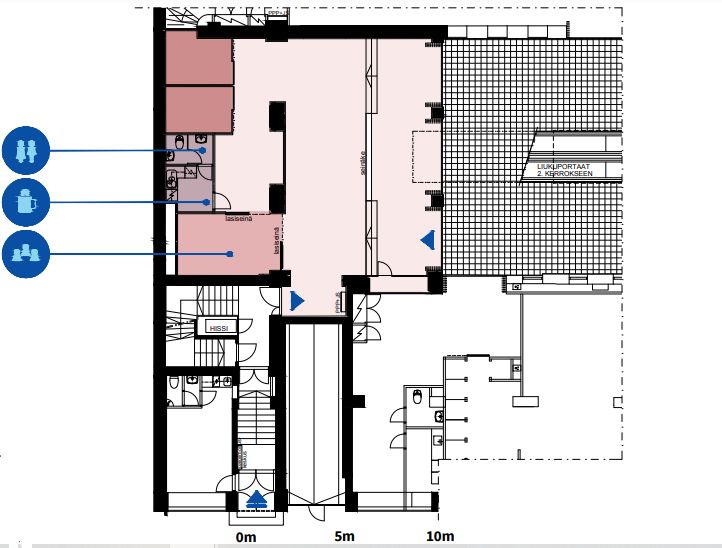
Vuokrattavana katutason siistiä liiketilaa, joka sijaitsee erinomaisella paikalla Tampereen ydinkeskustassa.
Osoite
Hämeenkatu 9, 33100 Tampere
Tilatyyppi
Liiketilaa
169 m2
Kiinteistö
Vuokrattavana katutason siistiä liiketilaa, joka sijaitsee erinomaisella paikalla Tampereen ydinkeskustassa. Tilassa on oma taukotila ja wc.
Sijainti
Kyttälä, Tampere
Pysäköinti
Pysäköintipaikat Hämpin Parkissa, jonne on oma suora hissiyhteys.
Palvelut
Tampereen keskustan palvelut.
Kulkuyhteydet
-Bussi
-Oma auto
-Oma auto
Vapautuu
Heti
Kerros
1
Energiatehokkuusluokka
Ei lain edellyttämää energiatodistusta
Katutasossa
Näkyvällä paikalla
Hissi
Ota yhteyttä
REALIUM OY LKV
Tammasaarenkatu 1, 00180 Helsinki
Vaihde:
Näytä puhelinnumero
010 326 346
Tuomo Mäkelä
tuomo.makela@realium.fi
p.
Näytä puhelinnumero
044 050 1158
Joel Keto
joel.keto@realium.fi
p.
Näytä puhelinnumero
045 317 0330
KAIKKI TILAVAIHTOEHDOT KERRALLA!
SOITA - MEILAA JA TILAA NÄYTTÖ!
Ilmainen palvelu tilanhakijoille.
Kartoitamme parhaat tilavaihtoehdot.
Kaikki kohteet eivät ole netissä.
Pyydä lisätietoa
