Vuokrataan toimistotilat - Turku
Linnankatu 3 A, Keskusta, 20100 Turku #10782700
Personallinen toimistohuoneisto aivan jokirannan äärellä
Osoite
Linnankatu 3 A, 20100 Turku
Tilatyyppi
Toimistotilaa
300 m2
Pysäköinti
Parkkitalo
Muuta
Vuokrattavana persoonallinen ja erittäin siistikuntoinen toimistotila arvokkaassa Casagranden talossa, aivan Turun sydämessä.
Tämä kahdessa kerroksessa sijaitseva toimisto tarjoaa inspiroivan ympäristön työntekoon, vain askeleen päässä historiallisesta Vähätorista ja Aurajoen rannan tunnelmallisista maisemista.
Vähätorin alue on tunnettu kulttuuristaan, arkkitehtuuristaan ja laadukkaista ravintoloistaan â ympäristö, joka luo ainutlaatuisen taustan nykyaikaiselle työskentelylle.
Casagranden talo on osa Turun arvokasta rakennusperintöä. Historiallinen rakennus henkii vanhan ajan arvokkuutta ja tarjoaa modernit puitteet yritystoiminnalle.
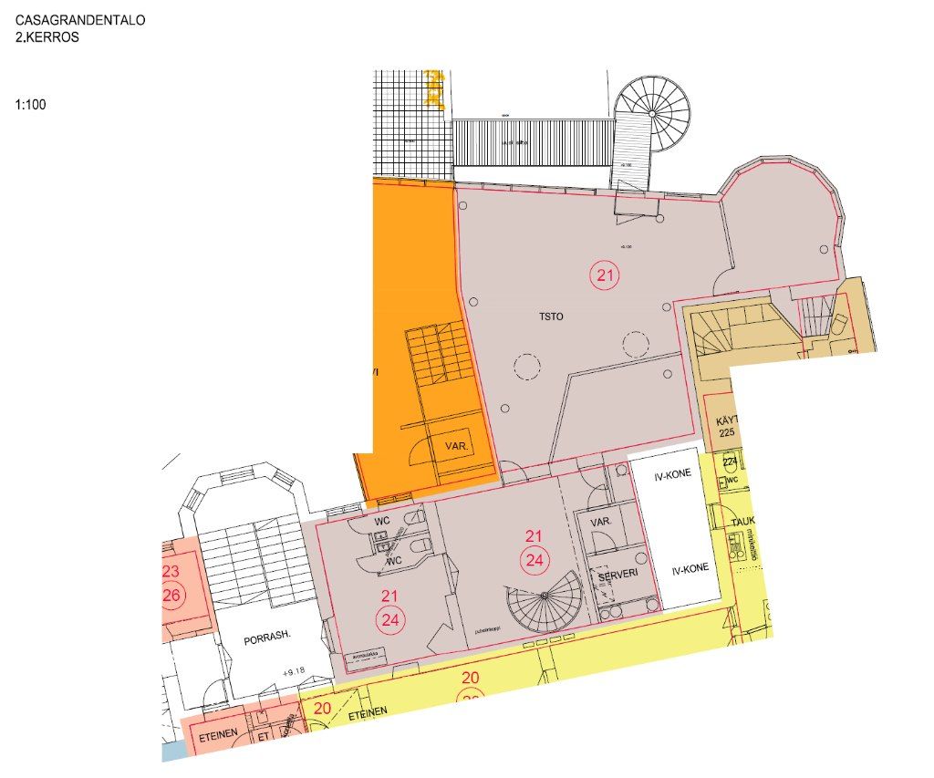
Tila itsessään on persoonallinen ja huolella pidetty. Sisääntulokerroksessa sijaitsee aula, kolme erillistä huonetta, kaksi wc:tä ja serverihuone.
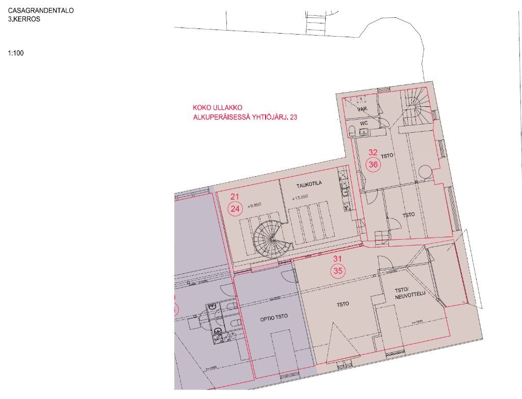
Yläkerrassa on neljä tiimihuonetta tai neuvottelutilaa sekä avokeittiö, joka tukee joustavaa työskentelyä ja yhteisöllistä ilmapiiriä.
Kaikki palvelut ovat lähellä: alueella on useita lounasravintoloita ja erinomaiset kulkuyhteydet.
Kiinteistössä on sähköiset lukot ja kulunvalvonta, jotka varmistavat turvallisen työympäristön.
Tila on heti vapaa ja mahdollista laajentaa jopa noin 500 m² kokonaisuudeksi, tarpeidesi mukaan.
Tervetuloa tutustumaan, varaathan välittäjältä oman esittelyaikasi.
Voit kysyä meiltä myös muita sopivia vaihtoehtoja, kauttamme löydät juuri Teidän tarpeisiinne sopivat tilat.
Palvelumme on tilanhakijalle veloitukseton!
Tämä kahdessa kerroksessa sijaitseva toimisto tarjoaa inspiroivan ympäristön työntekoon, vain askeleen päässä historiallisesta Vähätorista ja Aurajoen rannan tunnelmallisista maisemista.
Vähätorin alue on tunnettu kulttuuristaan, arkkitehtuuristaan ja laadukkaista ravintoloistaan â ympäristö, joka luo ainutlaatuisen taustan nykyaikaiselle työskentelylle.
Casagranden talo on osa Turun arvokasta rakennusperintöä. Historiallinen rakennus henkii vanhan ajan arvokkuutta ja tarjoaa modernit puitteet yritystoiminnalle.
Tila itsessään on persoonallinen ja huolella pidetty. Sisääntulokerroksessa sijaitsee aula, kolme erillistä huonetta, kaksi wc:tä ja serverihuone.
Yläkerrassa on neljä tiimihuonetta tai neuvottelutilaa sekä avokeittiö, joka tukee joustavaa työskentelyä ja yhteisöllistä ilmapiiriä.
Kaikki palvelut ovat lähellä: alueella on useita lounasravintoloita ja erinomaiset kulkuyhteydet.
Kiinteistössä on sähköiset lukot ja kulunvalvonta, jotka varmistavat turvallisen työympäristön.
Tila on heti vapaa ja mahdollista laajentaa jopa noin 500 m² kokonaisuudeksi, tarpeidesi mukaan.
Tervetuloa tutustumaan, varaathan välittäjältä oman esittelyaikasi.
Voit kysyä meiltä myös muita sopivia vaihtoehtoja, kauttamme löydät juuri Teidän tarpeisiinne sopivat tilat.
Palvelumme on tilanhakijalle veloitukseton!
Vapautuu
Kysy
Kerros
2-3.
Ota yhteyttä
Tuloskiinteistöt Oy
Kauppiaskatu 11 C 23, 20100 Turku
Näytä puhelinnumero
(02) 274 3500
Ritva Nuotio
Commercial Real Estate Advisor LKV, KED
Näytä puhelinnumero
+358 50 5261 744
Karoliina Eklund
Leasing Support Specialist
Näytä puhelinnumero
+358 40 017 8999
Pyydä lisätietoa
