Vuokrataan toimistotilat - Helsinki
Salmisaarenaukio 2, Salmisaari, 00180 Helsinki #10782674
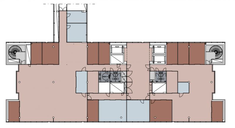
Vuokrattavana valoisaa, modernia toimistotilaa.
Osoite
Salmisaarenaukio 2, 00180 Helsinki
Tilatyyppi
Toimistotilaa
871 m2
Kiinteistö
Vuokrattavana valoisaa, modernia toimistotilaa. Toimistossa on avotoimisto, toimistohuoneet, neuvottelutilat sekä WC-tilat. Tilat muokataan vuokralaisen tarpeiden mukaan.
Sijainti
Salmisaari, Helsinki
Pysäköinti
Pysäköintipaikkoja on vuokrattavissa kiinteistön alla olevasta Salmiparkista.
Palvelut
-Aulapalvelu
-Ravintola
-Kokoustiloja
-Kuntosali
-Ravintola
-Kokoustiloja
-Kuntosali
Kulkuyhteydet
-Metro
-Raitiovaunu
-Bussi
-Oma auto
-Raitiovaunu
-Bussi
-Oma auto
Vapautuu
Heti
Kerros
5
Energiatehokkuusluokka
Ei lain edellyttämää energiatodistusta
Näkyvällä paikalla
Hissi
Ota yhteyttä
REALIUM OY LKV
Tammasaarenkatu 1, 00180 Helsinki
Vaihde:
Näytä puhelinnumero
010 326 346
Tuomo Mäkelä
tuomo.makela@realium.fi
p.
Näytä puhelinnumero
044 050 1158
Joel Keto
joel.keto@realium.fi
p.
Näytä puhelinnumero
045 317 0330
KAIKKI TILAVAIHTOEHDOT KERRALLA!
SOITA - MEILAA JA TILAA NÄYTTÖ!
Ilmainen palvelu tilanhakijoille.
Kartoitamme parhaat tilavaihtoehdot.
Kaikki kohteet eivät ole netissä.
Pyydä lisätietoa
