Vuokrataan toimistotilat, liiketilat - Helsinki
Annankatu 34, Kamppi, 00100 Helsinki #10782659
Vuokrataan korkeatasoista liiketilaa/toimistotilaa nykyaikaisella tekniikalla Kampissa Annankadun ja Urho Kekkosen kadun kulmassa. tilaan on sisäänkäynti Annankadun puolelta josta esteetön kulku. Kiinteistössä on kattavat kokous- ja aulapalvelut sekä ravintola. Tilat räätälöidään käyttäjän tarpeen mukaan. Huom. Kuvat ovat yleiskuvia kiinteistön tiloista. Ota yhteyttä ja sovi esittely, palvelumme on tilanhakijoille maksuton.
Osoite
Annankatu 34, 00100 Helsinki
Tilatyyppi
Toimistotilaa
291 m2
Liiketilaa
291 m2
Yhteensä
291 m2
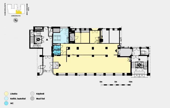
Pohjapiirros
Kiinteistö
Kampin Huippu, talossa on kahdeksan kerrosta, kaksi kellarikerrosta ja ullakkokerros. Ensimmäisessä kerroksessa on liiketiloja, ja ylemmät kerrokset ovat toimistokäytössä.
Sijainti
Kamppi on liike-elämän, kaupan, palvelujen ja liikenteen aktiivinen keskus, jonne Helsingin keskustan painopiste on asteittain siirtynyt. Kampin Huippu on kaupungin aitiopaikalla - Annankadun ja Urho Kekkosen kadun kulmassa, Kampin keskuksen välittömässä läheisyydessä. Liikenneyhteydet Kamppiin ovat erinomaiset kaikkialta pääkaupunkiseudulta.
Ympäristö
Kamppi
Pysäköinti
Kampin/Forumin pysäköintihalli. Lämmin pyöräparkki.
Palvelut
Kampin kauppakeskus, Forum ja keskustan kaikki palvelut.
Kulkuyhteydet
Kaikki joukkoliikennevälineet.
Muuta
Löytääksesi keskustasta kustannustehokkaan tilan, kannattaa laskea tilavaihtoehtojen todelliset työpistekohtaiset kustannukset. Kampin Huipun toimistotilat ovat helposti muunneltavaa tilaa. Tämä mahdollistaa tehokkaan tilankäytön ja kohtuulliset työpistekustannukset.
Vapautuu
01.10.2024
Kerros
4 / 8
Energiatehokkuusluokka
Ei lain edellyttämää energiatodistusta
Katutasossa
Näkyvällä paikalla
Hissi
Ota yhteyttä
Senaatin Notariaatti Oy LKV
Lämmittäjänkatu 4 A
FIN-00880 Helsinki
Tel:
Näytä puhelinnumero
+358 9 7745 100
Pyydä lisätietoa
