Vuokrataan toimistotilat - Helsinki
Valokaari 10, Suutarila, 00750 Helsinki #10782647
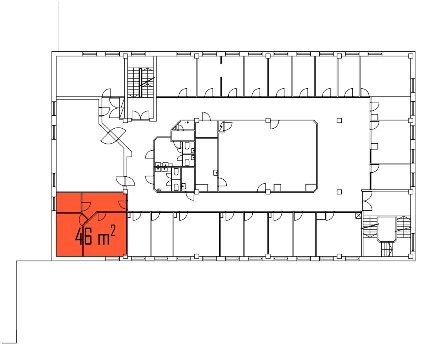
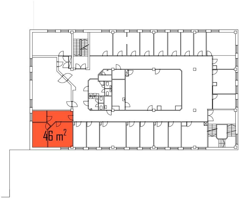
Pääkonttorirakennuksessa vuokrattavana toimistotila 46 m2 toisessa kerroksessa. Tila koostuu kolmesta huoneesta. Kiinteistössä valokuituyhteys.
Perinteikäs teollisuusmiljöö Suutarilassa, alle kilometrin päässä Kehä III ja Vuosaaren satamaan alle 10 km.
Lisätiedot ja kohde-esittelyt 020 7290 710, lisää kohteita premises.fi.
Kohteella ei ole lain edellyttämää energiatodistusta tai energialuokka ei tiedossa.Kerros: 2
Osoite
Valokaari 10, 00750 Helsinki
Tilatyyppi
Toimistotilaa
46 m2
Ota yhteyttä
CRE PREMISES
Puh. Näytä puhelinnumero 020 7290 710
Vantaankoskentie 14
01670 VANTAA
Pyydä lisätietoa
