Vuokrataan toimistotilat - Helsinki
Malminkartanonkuja 4, Konala, 00390 Helsinki #10782562
Modernia toimistotilaa Konalasta
Osoite
Malminkartanonkuja 4, 00390 Helsinki
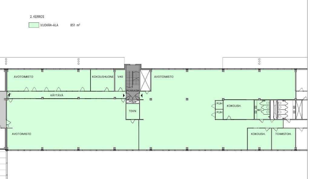
Tilatyyppi
Toimistotilaa
851 m2
Pysäköinti
Kyllä
Muuta
Vuokrataan moderni 851 m² toimistotila Konalasta. Tila voidaan räätälöidä tulevan vuokralaisen tarpeisiin.
Kiinteistön vuokralaisia palvelevat Fazerin lounasravintola, palloiluhalli, kuntosali, sekä lämmin parkkihalli pyöräparkilla ja sähkölatauspisteillä. Edustavat neuvottelutilat sekä 50-paikkaisen auditorion voi vuokrata edulliseen tuntihintaan. Varastorakennuksen puolelta on tarvittaessa mahdollisuus vuokrata varastotiloja. Toimistorakennuksesta on kulku sisäkautta varastorakennuksen puolelle.
Koy Helsingin Ruosilantie 16 on hyvällä sijainnilla aivan Konalan keskustassa, Vihdintien varrella. Erinomaiset julkisen liikenteen yhteydet Helsingin suuntaan mahdollistavat kohteen hyvän saavutettavuuden. Oman auton käyttäjiä palvelee vuokrattavat autopaikat.
Tervetuloa tutustumaan, varaathan välittäjältä oman esittelyaikasi. Kysy meiltä muitakin juuri teille sopivia vaihtoehtoja - meidän kautta saat myös täysin teidän tarpeisiin räätälöidyt tilat.
Palvelumme on tilanhakijalle veloitukseton!
Kiinteistön vuokralaisia palvelevat Fazerin lounasravintola, palloiluhalli, kuntosali, sekä lämmin parkkihalli pyöräparkilla ja sähkölatauspisteillä. Edustavat neuvottelutilat sekä 50-paikkaisen auditorion voi vuokrata edulliseen tuntihintaan. Varastorakennuksen puolelta on tarvittaessa mahdollisuus vuokrata varastotiloja. Toimistorakennuksesta on kulku sisäkautta varastorakennuksen puolelle.
Koy Helsingin Ruosilantie 16 on hyvällä sijainnilla aivan Konalan keskustassa, Vihdintien varrella. Erinomaiset julkisen liikenteen yhteydet Helsingin suuntaan mahdollistavat kohteen hyvän saavutettavuuden. Oman auton käyttäjiä palvelee vuokrattavat autopaikat.
Tervetuloa tutustumaan, varaathan välittäjältä oman esittelyaikasi. Kysy meiltä muitakin juuri teille sopivia vaihtoehtoja - meidän kautta saat myös täysin teidän tarpeisiin räätälöidyt tilat.
Palvelumme on tilanhakijalle veloitukseton!
Vapautuu
Kysy
Kerros
2
Ota yhteyttä
Tuloskiinteistöt Oy
Rikhardinkatu 2 B 5, 00130 Helsinki
Näytä puhelinnumero
(09) 6841 620
Nina Meyke
Commercial Real Estate Advisor
Näytä puhelinnumero
+358 50 466 1519
Otto Ahtola
Commercial Real Estate Advisor
Näytä puhelinnumero
+358 40 042 2830
Pyydä lisätietoa
