Vuokrataan toimistotilat - Helsinki
Lintulahdenkatu 10, Sörnäinen, 00500 Helsinki #10780278
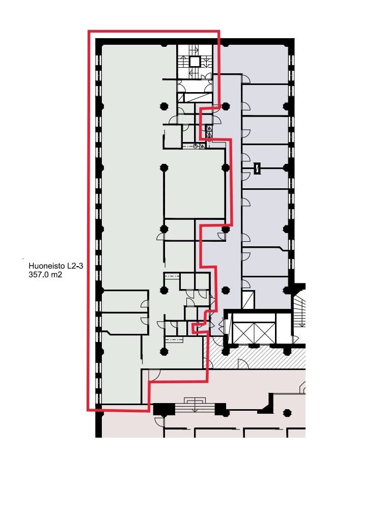
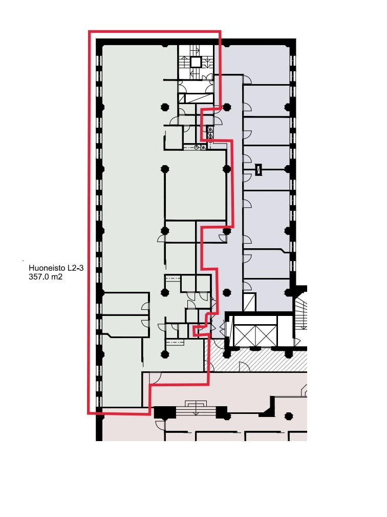
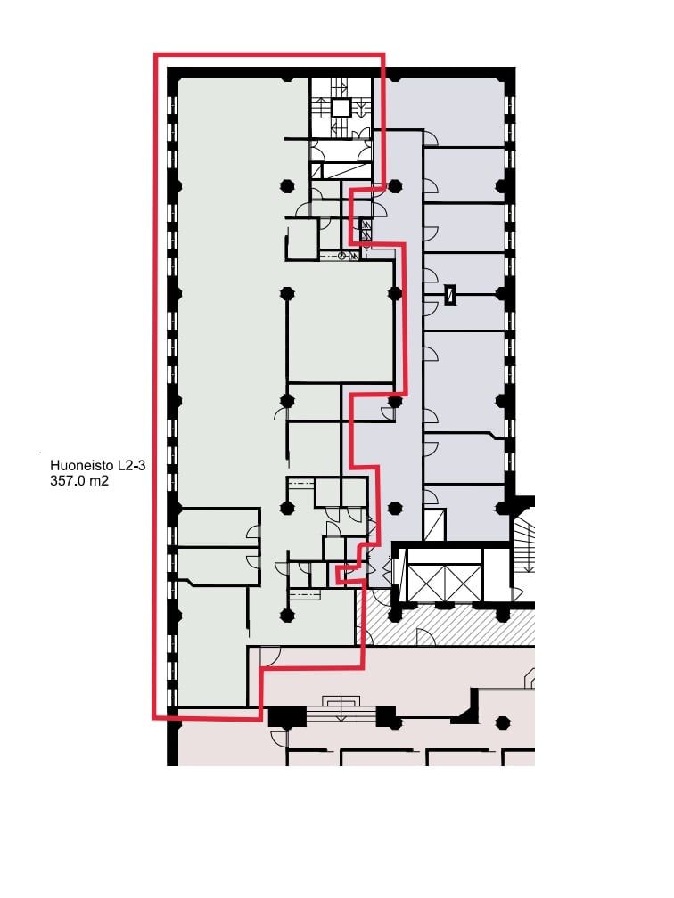
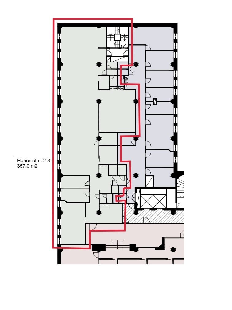
Upea toisen kerroksen monitilatoimisto - tiloja voidaan muokata ja tilanjakoa muokata käyttäjän tarpeiden mukaan, mutta puitteet ovat jo valmiiksi upeat käsittäen työhuoneita sekä avointa tilaa. Näiden tilojen siisteys ja avara ympäristö edistävät niissä työskentelevien henkilöiden viihtyvyyttä sekä jaksamista.
Lintulahdenkulma on rakennushistoriallisesti arvokas kiinteistö ja Sörnäisten maamerkki. Yli satavuotias kiinteistö on muutettu toimistoksi peruskorjauksen yhteydessä ja sitä on vaalittu rakkaudella sen jälkeen. Lounasravintola tarjoaa maittavan lounaan lisäksi cateringpalvelut, ja kotiin ostettavat herkut. Kiinteistön toimistotiloja täydentävät vuokrattavat neuvotteluhuoneet sekä ylimmän kerroksen viihtyisä saunatila.
Me Croisettella autamme teitä löytämään teille parhaat tilat! Olemme puolueettomia asiantuntijoita ja tunnemme toimitilamarkkinat, talot sekä tilat vankalla kokemuksella. Meillä on välityksessä kaikki toimitilat ja tiedämme niiden alustavat vuokratasot.
Tehtävämme on tehdä toimitilahaustanne onnistunut ja helppo. Saamme palkkiomme kiinteistönomistajalta, joten sinulle palvelumme on täysin maksuton.
Hissi
Croisette Real Estate Partner
Erottajankatu 5 A 6, 00130 Helsinki
Näytä puhelinnumero
+358 400 585 857
Croisette Vuokraus
Näytä puhelinnumero
+358400585857
