Vuokrataan toimistotilat - Helsinki
HTC Pinta, Tammasaarenkatu 3, Ruoholahti, 00180 Helsinki #10780274
Muuttovalmis kolmannen kerroksen 217 m² toimistotila meren äärellä Ruoholahdessa, aivan Länsiväylän tuntumassa.
Osoite
Tammasaarenkatu 3, 00180 Helsinki
Tilatyyppi
Toimistotilaa
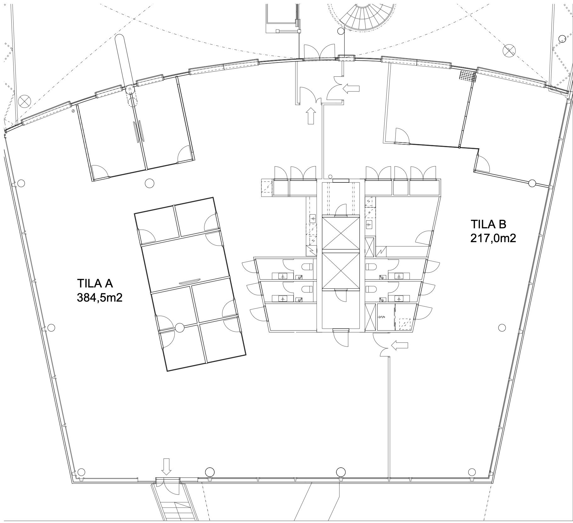
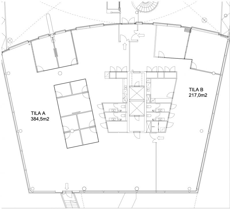
217 m2
Pohjapiirros
Kiinteistö
Siisti 3. kerroksen oleva 217 m² toimisto, joka koostuu avotilasta, parista huoneesta sekä omasta keittiöstä ja wc-tiloista.
HTC Helsinki on merellisessä Ruoholahdessa sijaitseva Business Park, joka tarjoaa tasokkaat toimistotilat hyvien palveluiden ja kulkuyhteyksien äärellä lähellä Helsingin ydinkeskustaa.
HTC Helsinki koostuu viidestä erillisestä rakennuksesta, jotka on nimetty löytöretkeilijöiden veneiden mukaan: Kolumbuksen Nina, Pinta ja Santa Maria sekä Nordenskiöldin Vega ja Heyerdahlin Kon-Tiki. HTC Helsingin rakennukset ovat valmistuneet vuosina 2001–2002.
HTC Pintasta löytyy neuvottelukeskus, josta voi vuokrata kokoustiloja kuuden henkilön kokoustilasta aina 235-paikkaiseen auditorioon. Kokoustilojen lisäksi Pintassa on aulatila, jossa voi järjestää kahvitusta tilaisuuksien lomassa.
HTC Helsinki on merellisessä Ruoholahdessa sijaitseva Business Park, joka tarjoaa tasokkaat toimistotilat hyvien palveluiden ja kulkuyhteyksien äärellä lähellä Helsingin ydinkeskustaa.
HTC Helsinki koostuu viidestä erillisestä rakennuksesta, jotka on nimetty löytöretkeilijöiden veneiden mukaan: Kolumbuksen Nina, Pinta ja Santa Maria sekä Nordenskiöldin Vega ja Heyerdahlin Kon-Tiki. HTC Helsingin rakennukset ovat valmistuneet vuosina 2001–2002.
HTC Pintasta löytyy neuvottelukeskus, josta voi vuokrata kokoustiloja kuuden henkilön kokoustilasta aina 235-paikkaiseen auditorioon. Kokoustilojen lisäksi Pintassa on aulatila, jossa voi järjestää kahvitusta tilaisuuksien lomassa.
Pysäköinti
Kiinteistön pysäköintihallista on vuokrattavissa pysäköintitilaa
Kulkuyhteydet
Metroasema 600 m, Raitiovaunupysäkki 200 m, Bussipysäkki 300 m, Juna-asema 3,2 km, Lentoasema 29,9 km
Vapautuu
Heti
Kerros
3 / 6
Energiatehokkuusluokka
Ei lain edellyttämää energiatodistusta
Näkyvällä paikalla
Hissi
Ota yhteyttä
ScanReal Oy LKV
Opus Business Park
Hitsaajankatu 24
00810 Helsinki
info@scanreal.fi
Puh:
Näytä puhelinnumero
020 730 8830
Sopivat toimitilat yhdellä otolla!
Kartoitamme toimitilatarpeesi ja etsimme yrityksellesi parhaiten sopivat vapaat toimitilat. Koska vuokranantajat maksavat palvelumme, on tämä yrityksellesi veloituksetonta.
OTA YHTEYTTÄ - SOVI NÄYTTÖ!
Kaikki kohteemme eivät ole netissä, kerro tilatarpeesi niin kartoitamme vaihtoehdot.
Palvelumme on tilanhakijalle ilmainen
Pyydä lisätietoa
