Vuokrataan liiketilat - Tampere
Hämeenkatu 9, Keskusta, 05800 Tampere #10780236
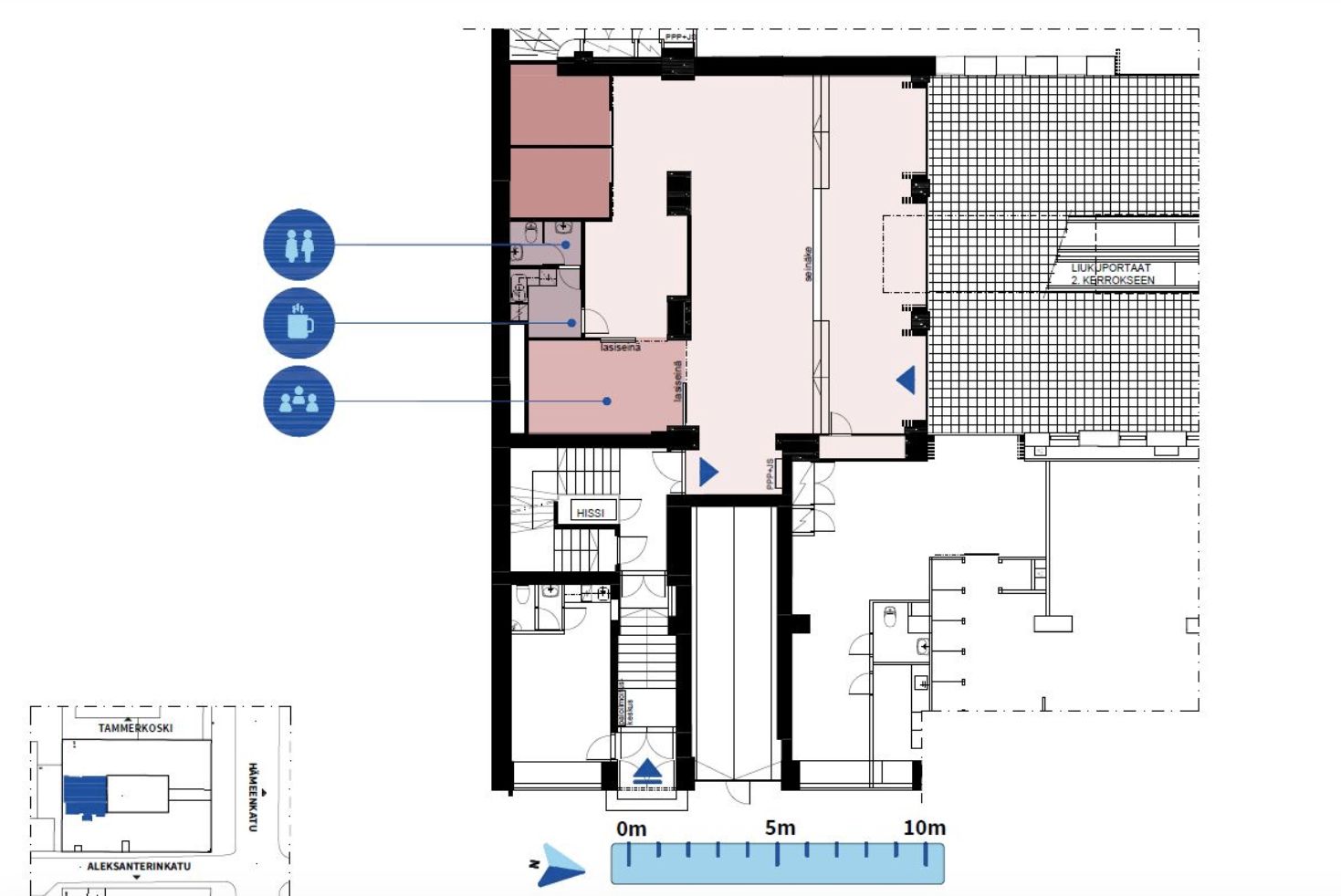
Liiketila vilkkaan Hämeenkadun varressa katutasossa. Oma taukotila ja wc. Talosta hissiyhteys parkkitalo P-Hämppiin. Ei sovellu ravintolaksi tai kahvilaksi.
LISÄTIETOJA numerosta 020 7290 710. Lisää kohteita osoitteessa www.premises.fi.
Kohteella ei ole lain edellyttämää energiatodistusta tai energialuokka ei tiedossa.Kerros: 1
Osoite
Hämeenkatu 9, 05800 Tampere
Tilatyyppi
Liiketilaa
169 m2
Kulkuyhteydet
Tampereen rautatieasema 300 m
Koskipuiston raitiovaunupysäkki 80 m
Scandic 100 m
Sokos Hotel Ilves 270 m
Koskikeskus 290 m
Koskipuiston raitiovaunupysäkki 80 m
Scandic 100 m
Sokos Hotel Ilves 270 m
Koskikeskus 290 m
Ota yhteyttä
CRE PREMISES
Puh. Näytä puhelinnumero 020 7290 710
Vantaankoskentie 14
01670 VANTAA
Pyydä lisätietoa
