Vuokrataan toimistotilat - Rovaniemi
Jaakonkatu 3, toimistotilaa, 96200 Rovaniemi #10780168
Vuokrataan toimistotilaa Rovaniemen ydinkeskustasta. Ota yhteyttä ja sovi esittely!
Osoite
Jaakonkatu 3, toimistotilaa, 96200 Rovaniemi
Tilatyyppi
Toimistotilaa
84 m2
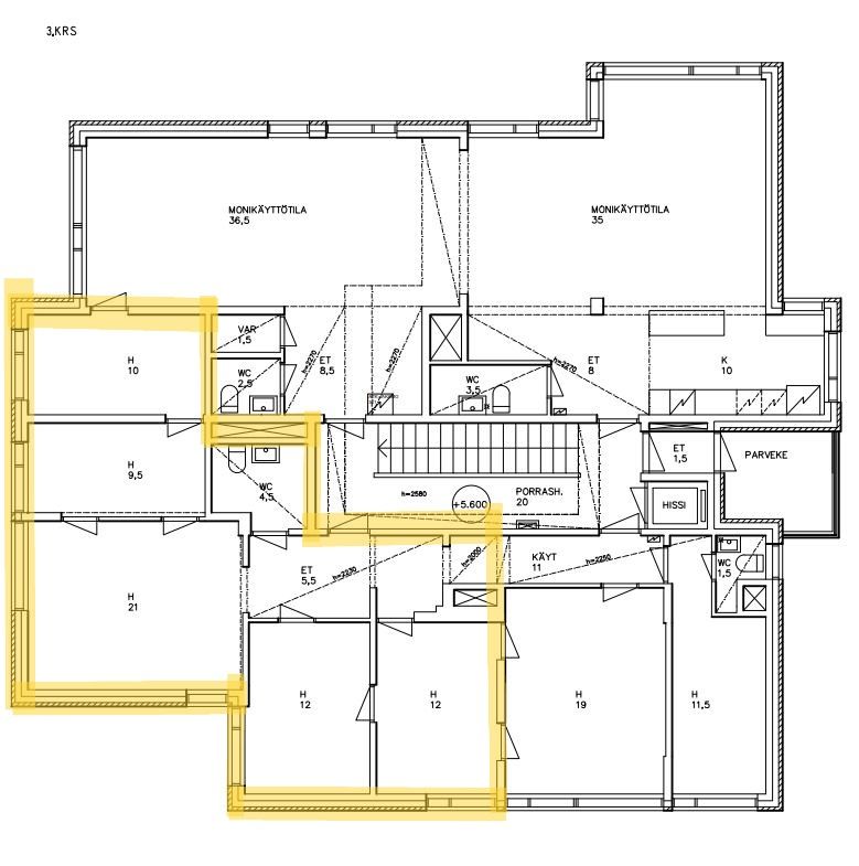
Pohjapiirros
Kiinteistö
Vuokrataan valoisa ja monipuoliseen käyttöön sopiva toimistotila Rovaniemen vilkkaalla Jaakonkadulla. Tilat sijaitsevat aivan ydinkeskustassa, hyvien liikenneyhteyksien varrella.
Sopii erinomaisesti esimerkiksi pienelle yritykselle tai edustustotoimistoksi. Osa 3. kerroksen toimistotiloista on vuokrattu toiselle toimijalle.
Tilassa on pinta-alaa 84,5 m², erillisiä toimistohuoneita 4 kpl, yksi avarampi kokoustilaksi sopiva tila ja wc.
Lisäksi tilassa on oma erillinen sisäänkäynti ja hissi. Toimistohuoneissa on äänieristetyt ovet.
Pihalla on vuokrattavissa lämmitystolpallisia autopaikkoja.
Ota yhteyttä ja sovi esittely!
Sopii erinomaisesti esimerkiksi pienelle yritykselle tai edustustotoimistoksi. Osa 3. kerroksen toimistotiloista on vuokrattu toiselle toimijalle.
Tilassa on pinta-alaa 84,5 m², erillisiä toimistohuoneita 4 kpl, yksi avarampi kokoustilaksi sopiva tila ja wc.
Lisäksi tilassa on oma erillinen sisäänkäynti ja hissi. Toimistohuoneissa on äänieristetyt ovet.
Pihalla on vuokrattavissa lämmitystolpallisia autopaikkoja.
Ota yhteyttä ja sovi esittely!
Sijainti
Ydinkeskusta
Pysäköinti
Pysäköintipaikka vuokrattavissa
Muuta
Takuuvuokra 3kk.
Vapautuu
Kysy
Kerros
3 / 4
Näkyvällä paikalla
Hissi
Ota yhteyttä
Rovaseudun Markkinakiinteistöt Oy
Rovaseudun Markkinakiinteistöt
Näytä puhelinnumero
020 152 5090
Rovaseudun Markkinakiinteistöt Oy kehittää Rovaniemen kaupungin elinvoimaa tarjoamalla alueen yrityksille monipuolisen valikoiman toimi- ja tuotantotiloja. Toimitilavuokrauksen lisäksi vuokraamme myös tapahtuma-alueita. Lordin aukio ja kauppatori ovat kaupungin suosituimpia tapahtumapaikkoja.
https://www.rovaseudunmarkkinakiinteistot.fi/Pyydä lisätietoa
