Vuokrataan toimistotilat - Tampere
Finlaysoninkatu 5, Keskusta Tampere, 33210 Tampere #10780122
Toimistotilaa Finlaysonin perinteikkäällä ja saneeratulla tehdasalueella.
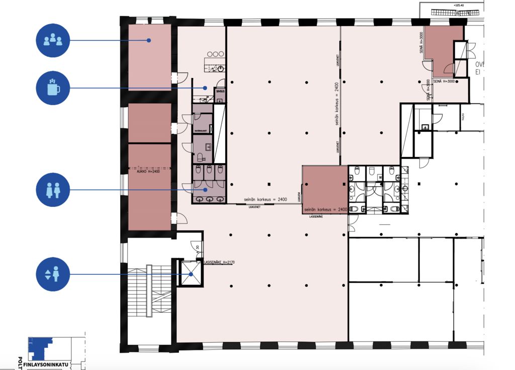
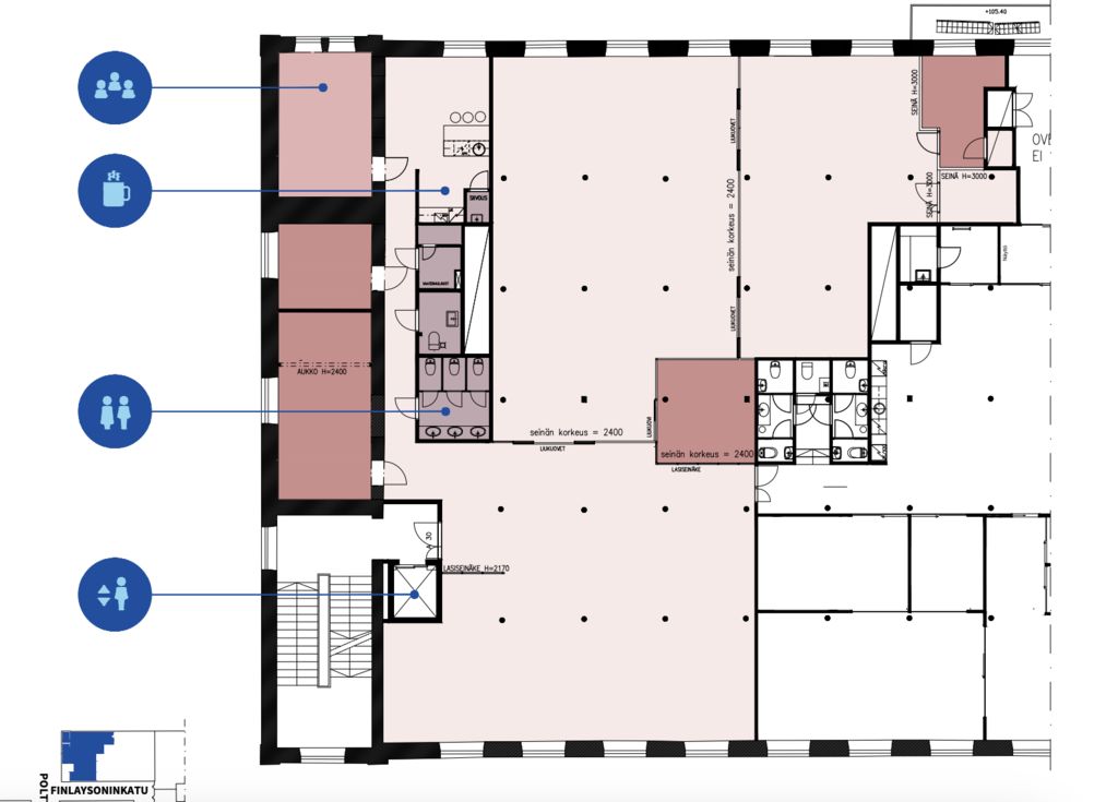
Tämä 524m2 toimistotila sijaitsee Kehräämö-rakennuksen 3. kerroksessa. Toimisto on jaettu kolmeen toimistoalueeseen ja tilaan kuuluu myös muutama neuvotteluhuone. Toimistossa on omat keittiö- ja wc-tilat. Tilaa on mahdollista muunnella vuokralaisen tarpeiden mukaan.
Finlaysonin toimistoalue sijaitsee Tampereen keskustassa. Se on useiden eri alojen vilkas työpaikkakeskittymä, josta löytyy runsaasti myös vapaa-ajan palveluja. Finlaysonin alue on tunnettu sen punatiilisistä tehdasrakennuksistaan, jotka nykyään palvelevat yrityksiä toimitila- ja liikekäytössä. Alueella toimii paljon tietotekniikka-alan toimijoita, ravintoloita ja erilaisia vapaa-ajan palveluita tuottavia yrityksiä.
Kysy lisää numerosta 044 723 4700 tai info@bref.fi. Palvelumme on tilanhakijoille ilmainen.
Bureau Real Estate Finland Oy
Lars Sonckin kaari 16, 02600 Espoo
Näytä puhelinnumero
0447234700
Bureau Real Estate Finland Oy
https://www.bref.fi