Vuokrataan toimistotilat - Helsinki
Fredrikinkatu 48, Kamppi, 00100 Helsinki #10780074
Valoisa 218,5 m² toimisto hyvällä paikalla Kampin Autotalokorttelissa
Osoite
Fredrikinkatu 48, 00100 Helsinki
Tilatyyppi
Toimistotilaa
218,5 m2
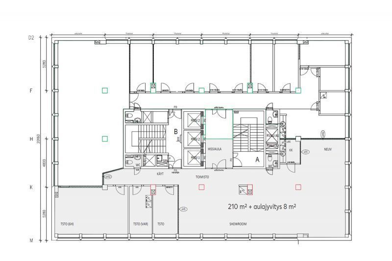
Pohjapiirros
Kiinteistö
Tyylikäs ja valoisa, kuudennen kerroksen avara toimistotila josta seesteiset näkymät upealle Fredrikinkadulle. Tilassa on sekä huoneita että avotilaa, minkä lisäksi oma keittiö, wc-tilat ja taukohuoneet viihtyvyyden takaamiseksi.
Freda 48-talossa sijaitsevaan tilaan on sisäänkäynti Eteläisen Rautatiekadun puolelta.
Helsingin Fredrikinkatu 48:n toimitilakiinteistö on valmistunut perinteikkääseen Autotalokortteliin vuonna 1962. Kiinteistö on käynyt läpi perusteellisen korjaushankkeen, jossa sen toimitiloja on avarrettu ja tehty avotiloiksi soveltuviksi.
Kampin autotalokortteli sijaitsee näkyvällä paikalla Kampin kauppakeskuksen vieressä. Kohteeseen on erinomaiset julkiset kulkuyhteydet metrolla, raitiovaunulla ja busseilla. Yksityisautoille on maanalaista pysäköintitilaa korttelin omassa autohallissa, jonne on suora hissiyhteys toimistokerroksista. Pyöräilijöille on pyöräparkki.
Freda 48-talossa sijaitsevaan tilaan on sisäänkäynti Eteläisen Rautatiekadun puolelta.
Helsingin Fredrikinkatu 48:n toimitilakiinteistö on valmistunut perinteikkääseen Autotalokortteliin vuonna 1962. Kiinteistö on käynyt läpi perusteellisen korjaushankkeen, jossa sen toimitiloja on avarrettu ja tehty avotiloiksi soveltuviksi.
Kampin autotalokortteli sijaitsee näkyvällä paikalla Kampin kauppakeskuksen vieressä. Kohteeseen on erinomaiset julkiset kulkuyhteydet metrolla, raitiovaunulla ja busseilla. Yksityisautoille on maanalaista pysäköintitilaa korttelin omassa autohallissa, jonne on suora hissiyhteys toimistokerroksista. Pyöräilijöille on pyöräparkki.
Pysäköinti
Kiinteistössä oma parkkihalli.
Palvelut
Kampin keskuksen monipuoliset palvelut. Kiinteistössä on autohalli, pyöräparkki suihkuineen ja ravintolamaailma.
Kulkuyhteydet
Kampin metroasema ja linja-autoasema aivan vieressä.
Metroasema 100 m, Raitiovaunupysäkki alle 100 m, Bussipysäkki alle 100 m, Juna-asema 700 m, Lentoasema 16,6 km.
Metroasema 100 m, Raitiovaunupysäkki alle 100 m, Bussipysäkki alle 100 m, Juna-asema 700 m, Lentoasema 16,6 km.
Vapautuu
Heti
Rakennusvuosi
1958
Saneerausvuosi
2016
Kerros
6
Energiatehokkuusluokka
F2007
Näkyvällä paikalla
Hissi
Ota yhteyttä
ScanReal Oy LKV
Opus Business Park
Hitsaajankatu 24
00810 Helsinki
info@scanreal.fi
Puh:
Näytä puhelinnumero
020 730 8830
Sopivat toimitilat yhdellä otolla!
Kartoitamme toimitilatarpeesi ja etsimme yrityksellesi parhaiten sopivat vapaat toimitilat. Koska vuokranantajat maksavat palvelumme, on tämä yrityksellesi veloituksetonta.
OTA YHTEYTTÄ - SOVI NÄYTTÖ!
Kaikki kohteemme eivät ole netissä, kerro tilatarpeesi niin kartoitamme vaihtoehdot.
Palvelumme on tilanhakijalle ilmainen
Pyydä lisätietoa
