Myydään liiketilat - Kempele
Asemantie 2, Keskusta, 90440 Kempele #10780051
Ennakkomarkkinoinnissa Kempeleen Keskustasta liikehuoneisto. Tila sijoittuu asuinkerrostalon ensimmäiseen kerrokseen. Tällä paikalla on hyvä näkyvyys, sillä liiketilan ikkunat ovat sekä Asemantien, että Ketolanperäntien suuntaan. Tilaan on oma sisäänkäynti Asemantien puolelta.
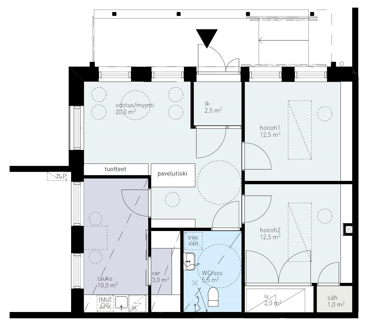
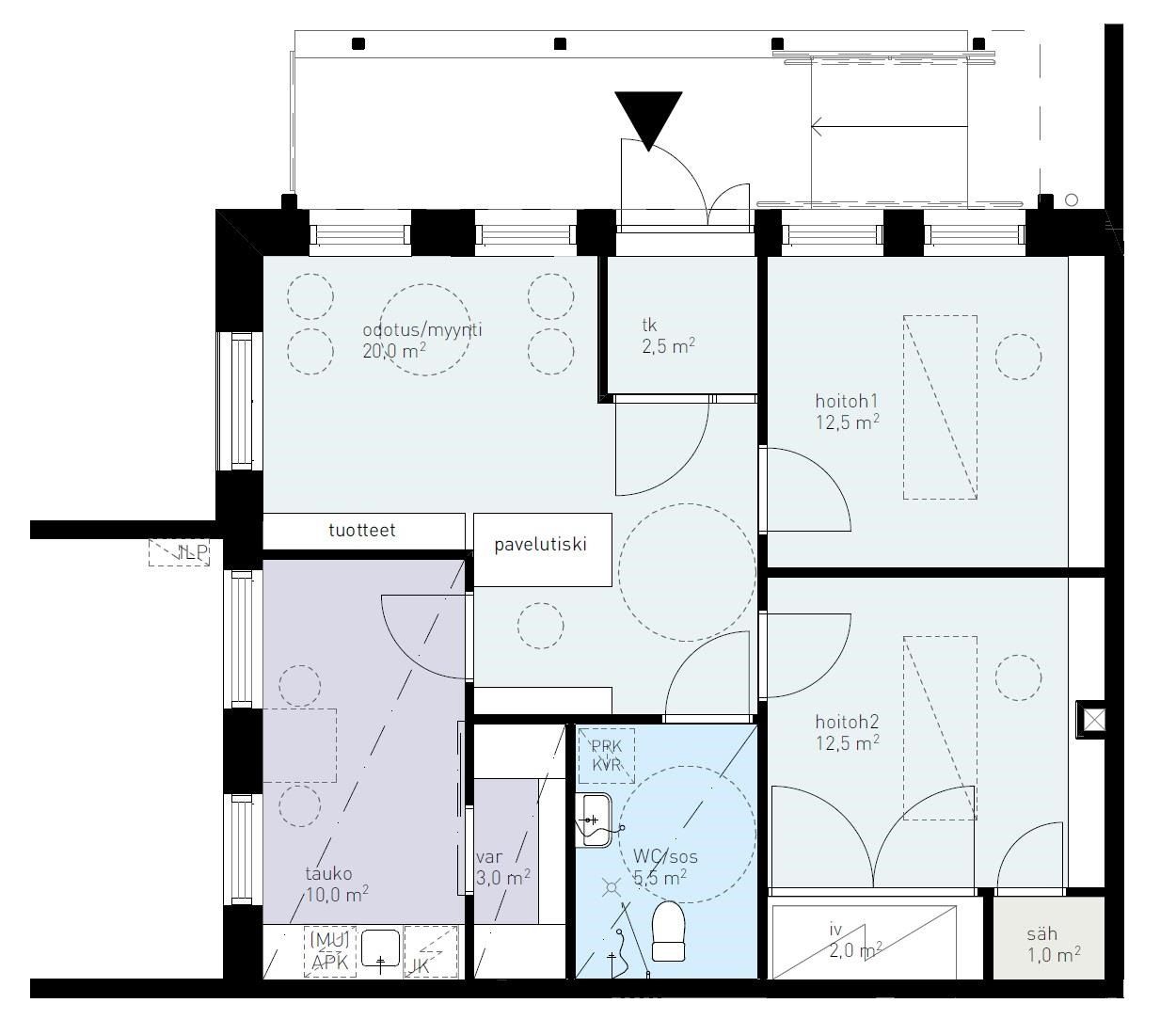
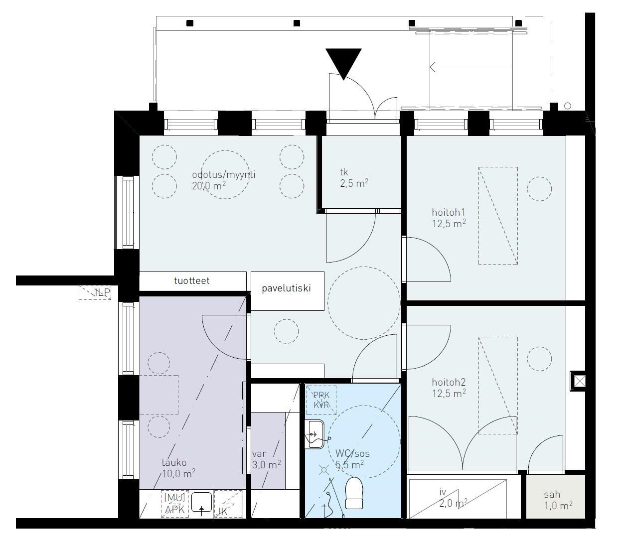
Liikehuoneiston pohjaratkaisu voidaan suunnitella vastaamaan yrityksesi tarpeita. Tilaan voidaan tehdä toimistotilaa, hoitohuoneita, asiakastilaa tms. Esimerkkejä pohjaratkaisusta löydät kuvista.
Ota yhteyttä ja tehdään tästä juuri yrityksellesi sopiva liiketilaratkaisu, Sami Valkonen 050 310 6520 tai sami.valkonen@op.fi
Liikehuoneiston pohjaratkaisu voidaan suunnitella vastaamaan yrityksesi tarpeita. Tilaan voidaan tehdä toimistotilaa, hoitohuoneita, asiakastilaa tms. Esimerkkejä pohjaratkaisusta löydät kuvista. Arvioitu valmistuminen 8/2025.
Ota yhteyttä ja tehdään tästä juuri yrityksellesi sopiva liiketilaratkaisu, Julia Hoikkala 050 411 8747 tai julia.hoikkala@op.fi
Muut tilat:
Tässä vaiheessa mahdollista vaikuttaa kokoon, jopa 99,5m2 asti.
OP Koti Pohjoinen Oy LKV
Toimitila- ja vuokravälitys
Lekatie 6
90140 OULU
Julia Hoikkala
Myyntineuvottelija, Toimitilat, LVV, Trad.
Näytä puhelinnumero
050 411 8747
