Vuokrataan varastotilat - Joensuu
Lylykoskentie 11, Käpykangas, 80130 Joensuu #10779957
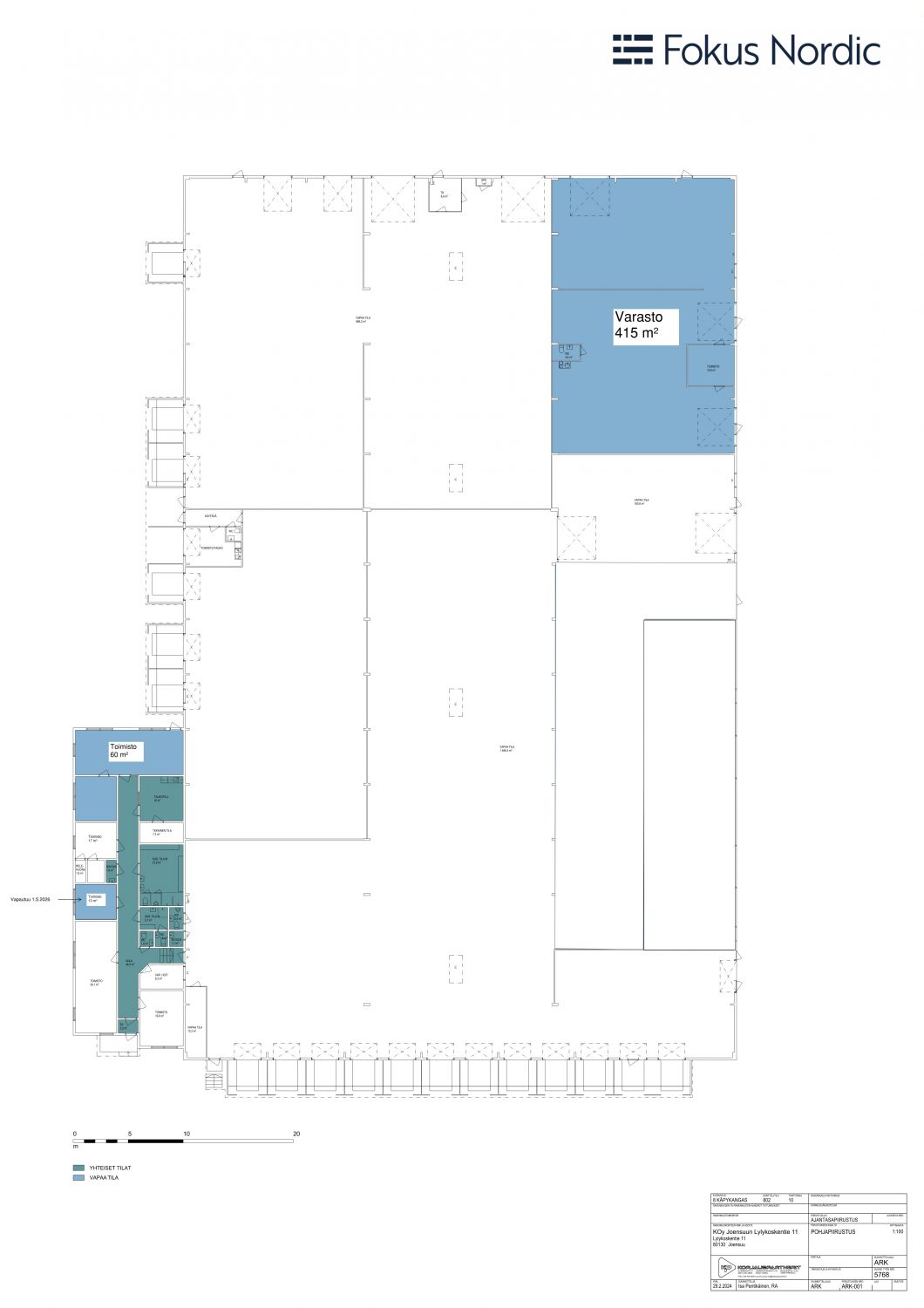
Vuokrataan ensimmäisen kerroksen 415 m²:n varastotila kolmella nosto-ovella. Vapaa korkeus n. 6-7 m. Vapaa!
Lisäksi vuokrataan 13 m²:n ja 60 m²:n toimistotilat.
Kiinteistö sijaitsee n. 2 km kesk...
Osoite
Lylykoskentie 11, 80130 Joensuu
Tilatyyppi
Varastotilaa
415 m2
Kiinteistö
Varasto-/ logistiikkakiinteistö hyvällä sijainnilla Joensuun Käpykankaan alueella. Esimerkiksi metallialan toiminnot, maalaamo, autokorjaamo tai puusepänliike menestyvät täällä mainiosti.
Sijainti
Keskustan länsipuolella sijaitseva Käpykangas on Joensuun keskeisin varastoinnin, tuotannon ja tilaa vievän kaupan alue. Keskustaan 3 km, Ysitielle 900 m ja Kutostielle 2 km.
Muuta
Vuokrataan ensimmäisen kerroksen 415 m²:n varastotila kolmella nosto-ovella. Vapaa korkeus n. 6-7 m. Vapaa!
Lisäksi vuokrataan 13 m²:n ja 60 m²:n toimistotilat.
Kiinteistö sijaitsee n. 2 km keskustasta länteen, Käpykankaalla, joka on vilkas kaupallinen ja logistinen alue.
Soita Kirsi Väisänen p. 050 549 5101 ja pyydä lisätietoja!
Katso lisätiedot
Lisäksi vuokrataan 13 m²:n ja 60 m²:n toimistotilat.
Kiinteistö sijaitsee n. 2 km keskustasta länteen, Käpykankaalla, joka on vilkas kaupallinen ja logistinen alue.
Soita Kirsi Väisänen p. 050 549 5101 ja pyydä lisätietoja!
Katso lisätiedot
Vapautuu
Kysy
Rakennusvuosi
1990
Energiatehokkuusluokka
D
Ota yhteyttä
Fokus Nordic Finland Oy
Näytä puhelinnumero
+358 50 549 5101
Kirsi Väisänen
Näytä puhelinnumero
+358 50 549 5101
Näytä puhelinnumero
+358 50 549 5101
Pyydä lisätietoa
