Vuokrataan toimistotilat - Helsinki
Tammasaarenkatu 3, Ruoholahti, 00180 Helsinki #10779925
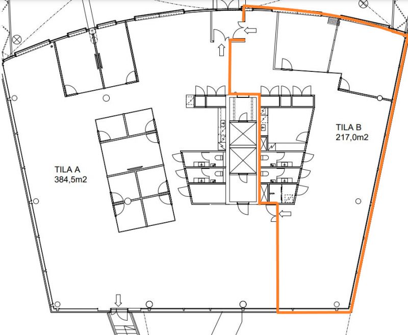
Vuokrataan avara toimisto merellisestä Ruoholahdesta. Muuttovalmis hyväkuntoinen avotoimisto kahdella huoneella ja omalla keittiöllä sekä kahdella wc:llä. Tule paikan päälle katsomaan ja suunnitellaan yhdessä unelmiesi toimisto!
HTC Pinta Ruoholahdessa on Helsinki -yrityspuistoon kuuluva maamerkki. Moderni yrityspuisto tarjoaa kattavat palvelut, kuten auditorio, kaksi ravintolaa, kuntosali, neuvottelutiloja ja edustussauna.
Kiinteistön sijainti merellisessä Ruoholahdessa on hyvä. Julkiset yhteydet ovat erinomaiset. Kiinteistön läheltä kulkee sekä raitiovaunu, että bussit. Ruoholahden metroasemalle kävelee alle 10 minuuttia. Kiinteistössä on myös parkkihalli.
Lisätietoja soita 020 730 4530 tai info@repoint.fi. Palvelumme on tilanhakijalle ilmainen.
Repoint Toimitilat Oy
Itälahdenkatu 22 B, 00210 Helsinki
Näytä puhelinnumero
020 730 4530
Lisätietoja soita Näytä puhelinnumero 020 730 4530 tai info@repoint.fi
https://repoint.fi/