Lataa liitetiedosto [PDF]
Liitetiedosto
Lataa liitetiedosto [PDF]
Liitetiedosto
Lataa liitetiedosto [PDF]
Liitetiedosto
Lataa liitetiedosto [PDF]
Liitetiedosto
Vuokrataan toimistotilat, liiketilat - Jyväskylä
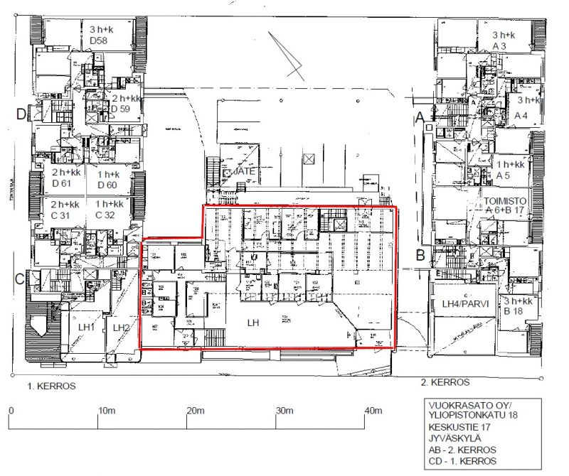
Yliopistonkatu 18, Keskusta, 40100 Jyväskylä #10779874
664m2 liiketila/toimisto, joka on mahdollista jakaa kahteen osaan. Aikaisemmin tilassa toiminut eläinlääkäriasema. Myös kellaritiloja on mahdollista vuokrata tilan vuokrauksen yhteydessä.
Lisätiedot ja kohde-esittely: 020 7290 710 ja lisää kohteita premises.fi
Kohteella ei lain edellyttämää energiatodistusta tai energialuokka ei tiedossa
Osoite
Yliopistonkatu 18, 40100 Jyväskylä
Tilatyyppi
Toimistotilaa
300 - 664 m2
Liiketilaa
300 - 664 m2
Yhteensä
300 - 664 m2
Ota yhteyttä
CRE PREMISES
Puh. Näytä puhelinnumero 020 7290 710
Vantaankoskentie 14
01670 VANTAA
Pyydä lisätietoa
