Vuokrataan toimistotilat - Jyväskylä
Kauppakatu 18, Keskusta, 40100 Jyväskylä #10779759
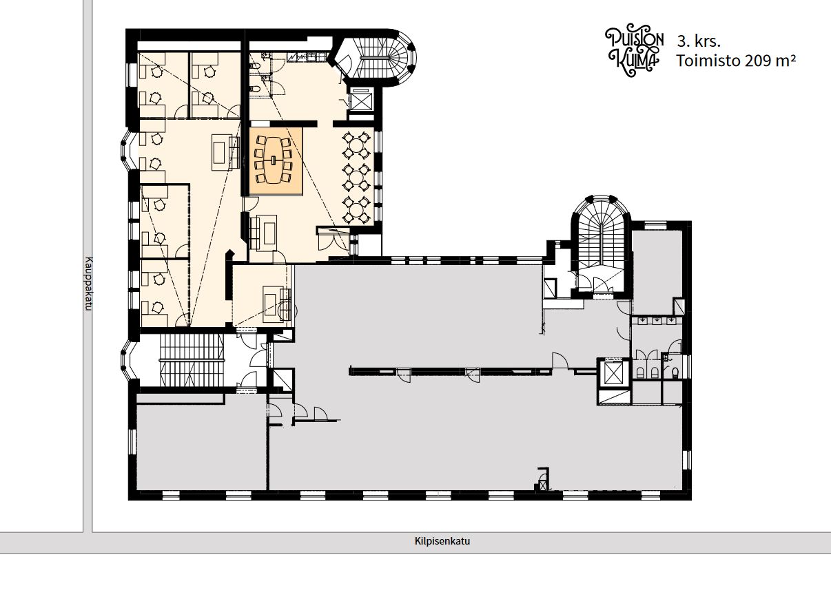
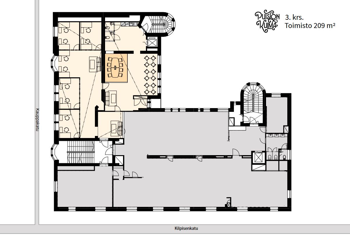
Näyttävä 3. kerroksen toimistotila, josta näkymät Kauppakadulle ja sisäpihalle. Esimerkkisovituksessa työpisteet 14:lle, iso neuvotteluhuone, sisääntuloaula sekä keittiö-, tauko- ja sosiaalitilat. Kaksi sisäänkäyntiä ja hissiyhteys.
Osoite
Kauppakatu 18, 40100 Jyväskylä
Tilatyyppi
Toimistotilaa
209 m2
Tilajako
Jaettavissa
Muuta
Näyttävä 3. kerroksen toimistotila, josta näkymät Kauppakadulle ja sisäpihalle. Esimerkkisovituksessa työpisteet 14:lle, iso neuvotteluhuone, sisääntuloaula sekä keittiö-, tauko- ja sosiaalitilat. Kaksi sisäänkäyntiä ja hissiyhteys. Yhdistettävissä saman kerroksen tilojen (389 m2) ja 2. kerroksen tilojen (653 m2) kanssa.
Katso lisätietoja: infonia.fi/puistonkulma
Saavutettavuus:
Puistonkulma sijaitsee Jyväskylän keskustassa lyhyen etäisyyden päässä kaikista julkisista kulkuvälineistä. Myös yksityisautolla saapuminen on helppoa. Kaikki Jyväskylän keskustan palvelut lähikortteleissa. Runsaasti lounasravintoloita.
Luonto / Ympäristö:
Luonnonläheinen sijainti Kirkkopuiston laidalla.
Pohjaratkaisu:
Kaunis ja valoisa toimisto upealla erkkerillä. Esimerkkisovituksessa 14 työpistettä, neuvotteluhuone, erillinen aulatila sekä keittiö-, tauko- ja sosiaalitilat. Tilaan on kaksi sisäänkäyntiä ja suora hissiyhteys.
Näkyvyys:
Keskeinen sijainti näkyvällä paikalla kaikkien tuntemassa rakennuksessa.
Lähipalvelut:
Kaikki Jyväskylän keskustan palvelut lähikortteleissa. Runsaasti lounasravintoloita.
Luonto / Ympäristö:
Luonnonläheinen sijainti Kirkkopuiston laidalla.
Pohjaratkaisu:
Kaunis ja valoisa toimisto upealla erkkerillä. Esimerkkisovituksessa 14 työpistettä, neuvotteluhuone, erillinen aulatila sekä keittiö-, tauko- ja sosiaalitilat. Tilaan on kaksi sisäänkäyntiä ja suora hissiyhteys.
Katso lisätietoja: infonia.fi/puistonkulma
Saavutettavuus:
Puistonkulma sijaitsee Jyväskylän keskustassa lyhyen etäisyyden päässä kaikista julkisista kulkuvälineistä. Myös yksityisautolla saapuminen on helppoa. Kaikki Jyväskylän keskustan palvelut lähikortteleissa. Runsaasti lounasravintoloita.
Luonto / Ympäristö:
Luonnonläheinen sijainti Kirkkopuiston laidalla.
Pohjaratkaisu:
Kaunis ja valoisa toimisto upealla erkkerillä. Esimerkkisovituksessa 14 työpistettä, neuvotteluhuone, erillinen aulatila sekä keittiö-, tauko- ja sosiaalitilat. Tilaan on kaksi sisäänkäyntiä ja suora hissiyhteys.
Näkyvyys:
Keskeinen sijainti näkyvällä paikalla kaikkien tuntemassa rakennuksessa.
Lähipalvelut:
Kaikki Jyväskylän keskustan palvelut lähikortteleissa. Runsaasti lounasravintoloita.
Luonto / Ympäristö:
Luonnonläheinen sijainti Kirkkopuiston laidalla.
Pohjaratkaisu:
Kaunis ja valoisa toimisto upealla erkkerillä. Esimerkkisovituksessa 14 työpistettä, neuvotteluhuone, erillinen aulatila sekä keittiö-, tauko- ja sosiaalitilat. Tilaan on kaksi sisäänkäyntiä ja suora hissiyhteys.
Vapautuu
Kysy
Kerros
2
Jaettavissa
Ota yhteyttä
Infonia Oy
Kauppakatu 18 A, 40100 Jyväskylä
Näytä puhelinnumero
+358 405041401
Jukka Akselin
Näytä puhelinnumero
+358 405041401
Pyydä lisätietoa
