Vuokrataan toimistotilat - Espoo
Linnoitustie 9-11, Leppävaara, 02600 Espoo #10779740
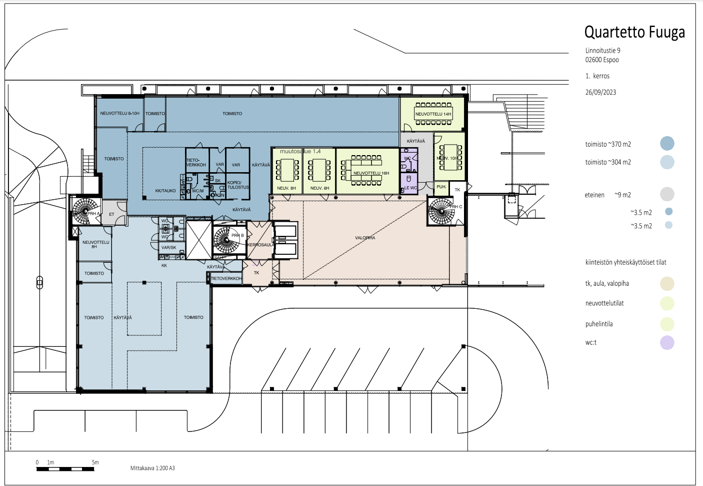
Vuokrataan toimistotilaa nykyaikaisesta QUARTETTO Business Parki FUUGAsta. Kerroskoko 1300m2. Kiinteistössä on tehokas ilmastointi, aulapalvelut, ravintola, auditorio, edustus- ja neuvottelutilat, kuntosali sekä autohalli. Ota yhteyttä ja sovi esittely, vuokrauspalvelumme on tilanhakijoille maksuton.
Osoite
Linnoitustie 9-11, 02600 Espoo
Tilatyyppi
Toimistotilaa
373 m2
Tilajako
Jaettavissa
Jaettavissa esim. 307 m2/373 m2.
Pohjapiirros
Pysäköinti
Autohalli, piha.
Palvelut
Leppävaaran kaikki palvelut.
Kulkuyhteydet
Juna, bussit.
Muuta
Katso pohjakuva liitetiedostosta.
Vapautuu
Heti
Kerros
1-5
Energiatehokkuusluokka
Ei lain edellyttämää energiatodistusta
Näkyvällä paikalla
Jaettavissa
Hissi
Ota yhteyttä
Senaatin Notariaatti Oy LKV
Lämmittäjänkatu 4 A
FIN-00880 Helsinki
Tel:
Näytä puhelinnumero
+358 9 7745 100
Pyydä lisätietoa
