Vuokrataan toimistotilat - Espoo
Lars Sonckin kaari 16, Leppävaara, 02600 Espoo #10779724
Kaikki nykyajan vaatimukset täyttävä toimistokiinteistö palveluineen Kehä I:n kupeessa Leppävaarassa. Vuokrattava tila sijaitsee TERRA-rakennuksen 5:ssä kerroksessa. Ota yhteyttä ja sovi esittely, vuokrauspalvelumme on tilanhakijoille maksuton.
Osoite
Lars Sonckin kaari 16, 02600 Espoo
Tilatyyppi
Toimistotilaa
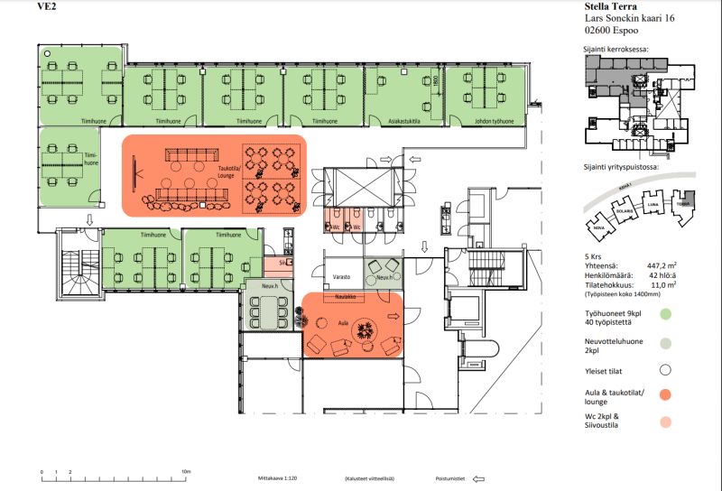
447 m2
Pohjapiirros
Pysäköinti
Parkkihalli, pihakansi.
Palvelut
Leppävaaran liikekeskus.
Kulkuyhteydet
Juna, bussit, kehä I, Turun väylä.
Muuta
Ensiluokkaista muuntelukelpoista toimistotilaa nykyaikaisessa Business-Park ympäristössä. Kiinteistö tarjoaa upeat puitteet ja palvelut hyvien liikenneyhteyksien äärellä.
Vapautuu
Heti
Kerros
5
Energiatehokkuusluokka
Ei lain edellyttämää energiatodistusta
Ota yhteyttä
Senaatin Notariaatti Oy LKV
Lämmittäjänkatu 4 A
FIN-00880 Helsinki
Tel:
Näytä puhelinnumero
+358 9 7745 100
Pyydä lisätietoa
