Vuokrataan liiketilat - Helsinki
Annankatu 34, Kamppi, 00100 Helsinki #10779652
Vuokrattavana liiketilaa näköalapaikalta Kampista Helsingin keskustasta.
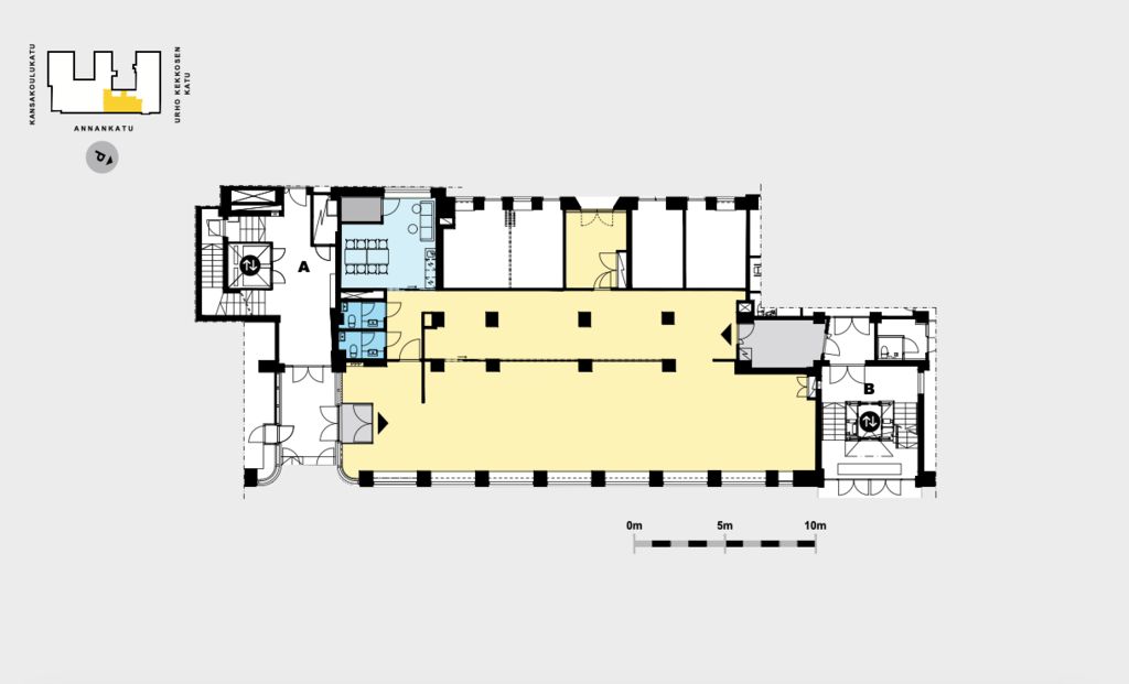
Tila koostuu avotilasta, taukotilasta sekä toimistotilasta. Sisäänkäynti Annakadulta. Tilaan on esteetön kulku. Erinomaisella liikepaikalla kaiken keskellä. Tilat mahdollistavat monipuolisen työympäristön yrityksesi tarpeisiin. Tilassa on isot ikkunat, jotka antavat tilalle hyvää näkyvyyttä.
Annankatu 34/ Urho Kekkosen katu 2 on liike- ja toimistokiinteistö, joka tunnetaan myös nimellä Kampin Huippu. Se sijaitsee Kampin kauppakeskuksen vieressä ja se on peruskorjattu vuonna 2022. Kiinteistön tiloissa on käytetty laadukkaita materiaaleja. Kiinteistön tilat ovat muokattavissa asiakkaan tarpeiden mukaisesti. Kampin Huipusta löytyy myös kattavat aulapalvelut, viihtyisät kokous- ja yhteistilat sekä lounasravintola, jotka ovat helposti kaikkien käytettävissä. Kiinteistössä käytetään ympäristövastuullisia ratkaisuja.
Forumin parkkihallista on suora yhteys kiinteistöön ja parkkitilaa löytyy lisää lukuisista pysäköintihalleista. Polkupyörällä kulkeville työntekijöille töihin saapuminen on tehty helpoksi, sillä baana sijaitsee noin 300 metrin päässä ja talosta löytyy pysäköintipaikkoja myös polkupyörille sekä sosiaalitilat suihkuineen. Vastapäätä sijaitseva kauppakeskus Kamppi tarjoaa monipuoliset ydinkeskustan palvelut ja liikenneyhteydet.
Kysy lisää numerosta 044 723 4700 tai info@bref.fi. Palvelumme on tilanhakijoille ilmainen.
Bureau Real Estate Finland Oy
Lars Sonckin kaari 16, 02600 Espoo
Näytä puhelinnumero
0447234700
Bureau Real Estate Finland Oy
https://www.bref.fi