Vuokrataan toimistotilat - Helsinki
Haiku, Kaikukatu 3, Sörnäinen, 00530 Helsinki #10779471
Peruskorjattu ja huippumoderni, noin 150 m² toimistotila Sörnäisissä.
Osoite
Kaikukatu 3, 00530 Helsinki
Tilatyyppi
Toimistotilaa
150 m2
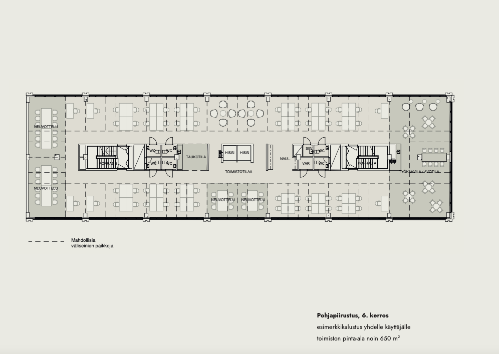
Pohjapiirros
Kiinteistö
Haikun kerrosala on noin 650 m², ja kerrokset ovat jaettavissa alkaen 150 m² kokoisiin tiloihin.
Helsingin Kallion Kaikukadulla sijaitseva toimitilakiinteistö Haiku yhdistää ainutlaatuisella tavalla menneen historiansa uuteen, moderniin tunnelmaan. Kunnianhimoisen peruskorjauksen läpikäyvä, omaa alkuperäistä tyyliään myös uudistettuna edustava kiinteistö luo sujuvan ja miellyttävän rytmin yritysten arjelle.
Kalasataman ja Keski-Pasilan alueiden kehittyessä lipuu Helsingin keskusta hiljalleen kohti pohjoista, Kallion kulttuurillisesti vivahteikasta kaupunginosaa. Toimitilakiinteistö Haiku sijaitsee Kallion sydämen rauhallisella sivulla osoitteessa Kaikukatu 3, Väinö Tannerin kentän vieressä ja samassa luovuutta henkivässä korttelissa Kuvataideakatemian ja Teatterikorkeakoulun kanssa.
Julkisen liikenteen keskeiset väylät, Hämeentie ja Sörnäisten rantatie, sivuavat Haikun korttelia. Kävelymatka Haikusta metroasemalle taittuu kymmenessä ja raitiovaunupysäkille viidessä minuutissa. Bussipysäkille ja kaupunkipyöräasemalle kävelee kiinteistön pihalta muutamassa minuutissa. Omalla autollaan liikkuva kurvaa Haikussa parkkiin kiinteistön alla olevaan lämpimään halliin, josta löytyy latausasemat myös sähkö- ja hybridiautoille.
Talon kellarikerroksessa on esteettömät suihku- ja pukutilat miehille ja naisille sekä kätevä kuivatushuone vaatteille. Polkupyöräparkit sijaitsevat pääoven vieressä rauhallisella sisäpihalla ja kellarikerroksen hallissa. Myös sähköpyörien akkujen lataus onnistuu.
Uudistuksen yhteydessä rakennettava sisäänkäyntilaajennus, puistomainen sisäpiha sekä lasiseinin avattavat alakerrokset tekevät Haikusta helposti lähestyttävän ja houkuttelevan sekä omintakeisella tavalla mielenkiintoisen. Haikun yleisten sisätilojen pintamateriaaleihin ja kalustuksiin, niiden väreihin, tekstuureihin ja muotoihin, on haettu innoitus japanilaista ja skandinaavista estetiikkaa harmonisesti yhdistelevästä japandi- tyylisuuntauksesta.
Helsingin Kallion Kaikukadulla sijaitseva toimitilakiinteistö Haiku yhdistää ainutlaatuisella tavalla menneen historiansa uuteen, moderniin tunnelmaan. Kunnianhimoisen peruskorjauksen läpikäyvä, omaa alkuperäistä tyyliään myös uudistettuna edustava kiinteistö luo sujuvan ja miellyttävän rytmin yritysten arjelle.
Kalasataman ja Keski-Pasilan alueiden kehittyessä lipuu Helsingin keskusta hiljalleen kohti pohjoista, Kallion kulttuurillisesti vivahteikasta kaupunginosaa. Toimitilakiinteistö Haiku sijaitsee Kallion sydämen rauhallisella sivulla osoitteessa Kaikukatu 3, Väinö Tannerin kentän vieressä ja samassa luovuutta henkivässä korttelissa Kuvataideakatemian ja Teatterikorkeakoulun kanssa.
Julkisen liikenteen keskeiset väylät, Hämeentie ja Sörnäisten rantatie, sivuavat Haikun korttelia. Kävelymatka Haikusta metroasemalle taittuu kymmenessä ja raitiovaunupysäkille viidessä minuutissa. Bussipysäkille ja kaupunkipyöräasemalle kävelee kiinteistön pihalta muutamassa minuutissa. Omalla autollaan liikkuva kurvaa Haikussa parkkiin kiinteistön alla olevaan lämpimään halliin, josta löytyy latausasemat myös sähkö- ja hybridiautoille.
Talon kellarikerroksessa on esteettömät suihku- ja pukutilat miehille ja naisille sekä kätevä kuivatushuone vaatteille. Polkupyöräparkit sijaitsevat pääoven vieressä rauhallisella sisäpihalla ja kellarikerroksen hallissa. Myös sähköpyörien akkujen lataus onnistuu.
Uudistuksen yhteydessä rakennettava sisäänkäyntilaajennus, puistomainen sisäpiha sekä lasiseinin avattavat alakerrokset tekevät Haikusta helposti lähestyttävän ja houkuttelevan sekä omintakeisella tavalla mielenkiintoisen. Haikun yleisten sisätilojen pintamateriaaleihin ja kalustuksiin, niiden väreihin, tekstuureihin ja muotoihin, on haettu innoitus japanilaista ja skandinaavista estetiikkaa harmonisesti yhdistelevästä japandi- tyylisuuntauksesta.
Vapautuu
Heti
Saneerausvuosi
2024
Kerros
2 / 7
Energiatehokkuusluokka
Ei lain edellyttämää energiatodistusta
Hissi
Ota yhteyttä
ScanReal Oy LKV
Opus Business Park
Hitsaajankatu 24
00810 Helsinki
info@scanreal.fi
Puh:
Näytä puhelinnumero
020 730 8830
Sopivat toimitilat yhdellä otolla!
Kartoitamme toimitilatarpeesi ja etsimme yrityksellesi parhaiten sopivat vapaat toimitilat. Koska vuokranantajat maksavat palvelumme, on tämä yrityksellesi veloituksetonta.
OTA YHTEYTTÄ - SOVI NÄYTTÖ!
Kaikki kohteemme eivät ole netissä, kerro tilatarpeesi niin kartoitamme vaihtoehdot.
Palvelumme on tilanhakijalle ilmainen
Pyydä lisätietoa
