Vuokrataan toimistotilat, varastotilat, työtilat - Helsinki
Sorvaajankatu 11 a, Herttoniemi, 00880 Helsinki #10779468
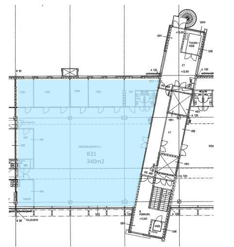
Vuokrattavana Herttoniemessä valoisaa ja avaraa työ-/tuotanto- ja varastotiloja hyvällä sijainnilla.
Osoite
Sorvaajankatu 11 a, 00880 Helsinki
Tilatyyppi
Toimistotilaa
345 m2
Varastotilaa
345 m2
Työtilaa
345 m2
Yhteensä
345 m2
Kiinteistö
Vuokrattavana Herttoniemessä valoisaa ja avaraa työ-/tuotanto- ja varastotiloja hyvällä sijainnilla. Tila soveltuu toimistoksi, varastoksi tai työtilaksi.
Sijainti
Herttoniemi, Helsinki
Pysäköinti
Kiinteistön pihalla pysäköintitilaa ja lisäksi kadunvarrella.
Palvelut
Kauppakeskus MegaHertsin palvelut lähialueella.
Lounasravintola viereisessä Marimekon kiinteistössä.
Lounasravintola viereisessä Marimekon kiinteistössä.
Kulkuyhteydet
-Bussi
-Oma auto
-Oma auto
Muuta
Kiinteistössä on tavarahissi, josta yhteydet jokaiseen kerrokseen.
Lastauslaituri/tila katoksen alla.
Lastauslaituri/tila katoksen alla.
Vapautuu
Heti
Kerros
4
Energiatehokkuusluokka
Ei lain edellyttämää energiatodistusta
Näkyvällä paikalla
Hissi
Ota yhteyttä
REALIUM OY LKV
Tammasaarenkatu 1, 00180 Helsinki
Vaihde:
Näytä puhelinnumero
010 326 346
Tuomo Mäkelä
tuomo.makela@realium.fi
p.
Näytä puhelinnumero
044 050 1158
Joel Keto
joel.keto@realium.fi
p.
Näytä puhelinnumero
045 317 0330
KAIKKI TILAVAIHTOEHDOT KERRALLA!
SOITA - MEILAA JA TILAA NÄYTTÖ!
Ilmainen palvelu tilanhakijoille.
Kartoitamme parhaat tilavaihtoehdot.
Kaikki kohteet eivät ole netissä.
Pyydä lisätietoa
