Vuokrataan toimistotilat - Helsinki
Porkkalankatu 24, Ruoholahti, 00180 Helsinki #10779444
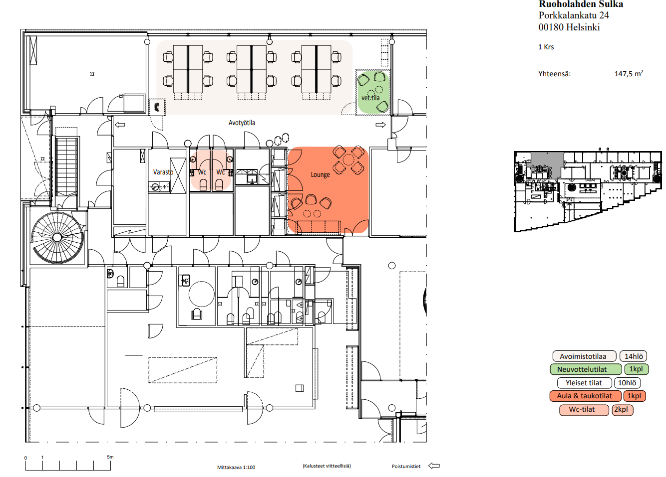
Kaikki nykyajan vaatimukset täyttävässä modernissa rakennuksessa vuokrattavana ensimmäisen kerroksen avotila, jossa 2 vetäytymistilaa: yhden hengen puhelinkoppi sekä 2-3 henkilön neuvottelutila. Ota yhteyttä ja sovi esittely, vuokrauspalvelumme on tilanhakijoille maksuton.
Osoite
Porkkalankatu 24, 00180 Helsinki
Tilatyyppi
Toimistotilaa
150 m2
Pohjapiirros
Kiinteistö
Ruoholahden Sulka
Sijainti
Ruoholahti
Ympäristö
Toimistokeskittymä
Pysäköinti
Autohalli
Palvelut
Kaikki lähellä
Kulkuyhteydet
Metro, bussit, ratikka
Muuta
Kiinteistössä aulavastaanotto, erillisiä neuvotteluhuoneita, ravintola, kuntosali, ym.
Vapautuu
Heti
Kerros
1
Energiatehokkuusluokka
Ei lain edellyttämää energiatodistusta
Näkyvällä paikalla
Hissi
Ota yhteyttä
Senaatin Notariaatti Oy LKV
Lämmittäjänkatu 4 A
FIN-00880 Helsinki
Tel:
Näytä puhelinnumero
+358 9 7745 100
Pyydä lisätietoa
