Vuokrataan toimistotilat - Helsinki
Porkkalankatu 22, Ruoholahti, 00180 Helsinki #10779402
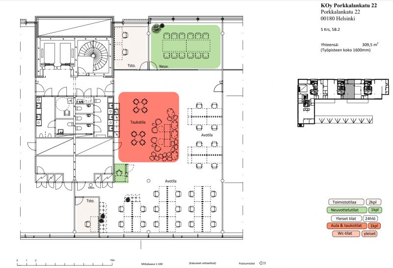
Vuokrataan viidennen kerroksen kombitoimistotila Ruoholahdesta. Pysäköintitilaa on runsaasti kiinteistön alla sijaitsevassa pysäköintilaitoksessa. Talossa myös aulapalvelu sekä tasokas lounasravintola. Ota yhteyttä ja sovi esittely, palvelumme on tilanhakijoille ilmainen.
Osoite
Porkkalankatu 22, 00180 Helsinki
Tilatyyppi
Toimistotilaa
309 m2
Pohjapiirros
Kiinteistö
Nykyaikainen toimistokiinteistö Ruoholahden Tähti sijaitsee keskeisellä paikalla, kehittyvässä liike-elämän keskuksessa Ruoholahdessa.
Sijainti
Ruoholahti
Pysäköinti
Kauppakeskus Ruoholahden pysäköintihallista voi vuokrata pysäköintipaikkoja. Hallista on suora yhteys hisseillä kerroksiin.
Palvelut
Ruoholahden kauppakeskus
Kulkuyhteydet
Kiinteistö sijaitsee Ruoholahdessa erinomaisten kulkuyhteyksien varrella. Bussit, raitiovaunut ja metro ovat lyhyen kävelymatkan päässä.
Vapautuu
Heti
Kerros
5
Energiatehokkuusluokka
F2007
Näkyvällä paikalla
Hissi
Ota yhteyttä
Senaatin Notariaatti Oy LKV
Lämmittäjänkatu 4 A
FIN-00880 Helsinki
Tel:
Näytä puhelinnumero
+358 9 7745 100
Pyydä lisätietoa
