Vuokrataan toimistotilat - Helsinki
Vanhanlinnantie 3, Itäkeskus, 00900 Helsinki #10779360
Vuokrattavana kerho- tai toimistotilaksi soveltuva tila.
Osoite
Vanhanlinnantie 3, 00900 Helsinki
Tilatyyppi
Toimistotilaa
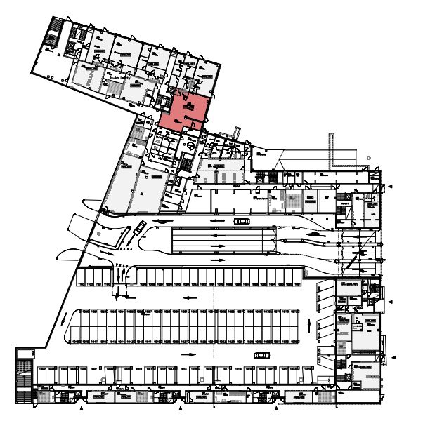
117,5 m2
Kiinteistö
Vuokrattavana korkeatasoista kerho-/toimistotilaa Itäkeskuksessa. Toimitilaan on oma sisäänkäynti.
Sijainti
Itäkeskus, Helsinki
Pysäköinti
Kiinteistön hallissa
Palvelut
Kauppakeskus Itiksen palvelut.
Kulkuyhteydet
- Metro
- Bussi
- Oma auto
- Bussi
- Oma auto
Vapautuu
Heti
Kerros
1
Energiatehokkuusluokka
Ei lain edellyttämää energiatodistusta
Katutasossa
Näkyvällä paikalla
Ota yhteyttä
REALIUM OY LKV
Tammasaarenkatu 1, 00180 Helsinki
Vaihde:
Näytä puhelinnumero
010 326 346
Tuomo Mäkelä
tuomo.makela@realium.fi
p.
Näytä puhelinnumero
044 050 1158
Joel Keto
joel.keto@realium.fi
p.
Näytä puhelinnumero
045 317 0330
KAIKKI TILAVAIHTOEHDOT KERRALLA!
SOITA - MEILAA JA TILAA NÄYTTÖ!
Ilmainen palvelu tilanhakijoille.
Kartoitamme parhaat tilavaihtoehdot.
Kaikki kohteet eivät ole netissä.
Pyydä lisätietoa
