Vuokrataan toimistotilat, varastotilat - Helsinki
Vuokrataan kiinteistö Rälssintie 6, Pukinmäki Helsinki, Rälssintie 6, Pukinmäki, 00720 Helsinki #10779333
Vuokrataan toimisto-, liike- ja varastotilaa loistavalta sijainnilta Pukinmäestä, aivan Kehä I varrelta sekä Pukinmäen juna-aseman läheisyydestä. Kiinteistössä toimii konserniyhtiömme Oy Perkko, jonka ydinliiketoimintaa on kellojen ja korujen maahantuonti. Tilat ovat Perkon käytössä vain osittain eli kiinteistön tilat on vuokrattavissa eri kokoisina vaihtoehtoina (alkaen 384 m2) tai kokonaan. Julkisilla matka-aika Pukinmäkeen keskustasta on alle vartti.
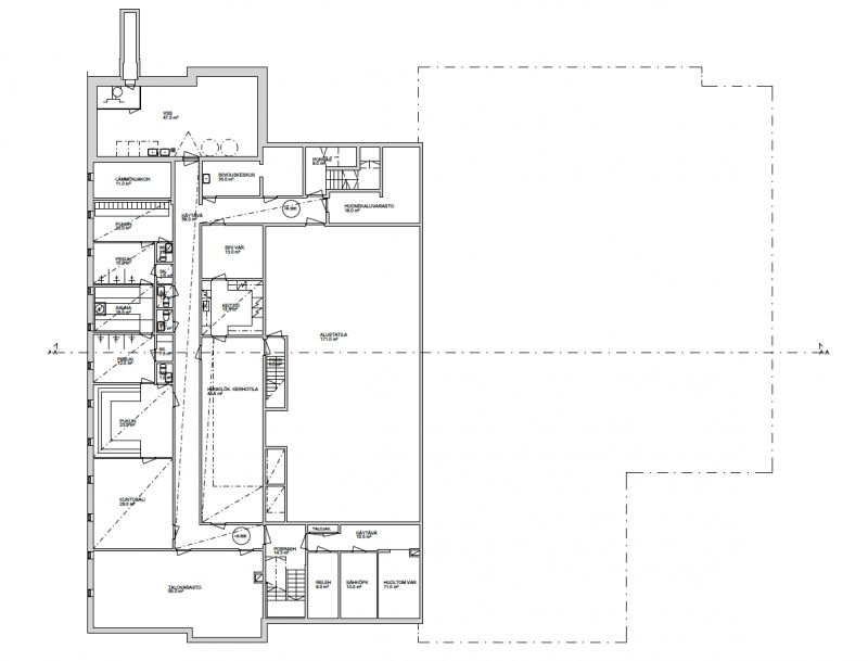
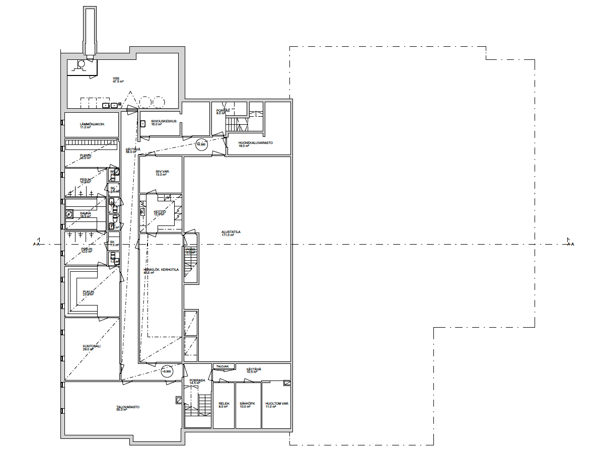
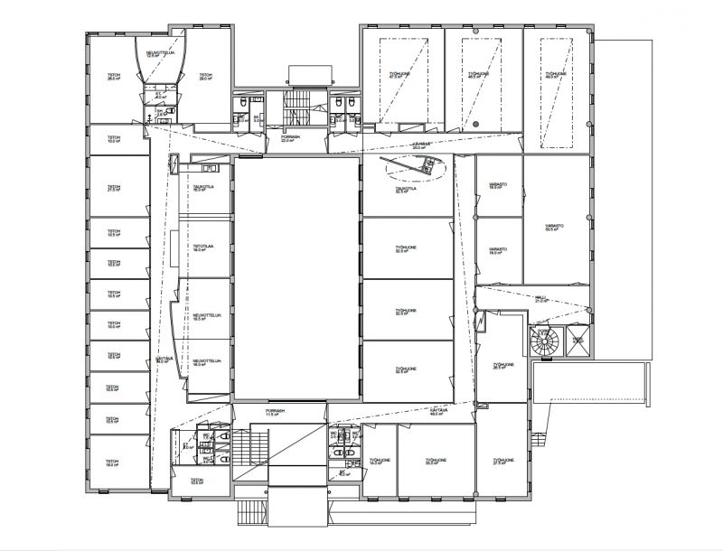
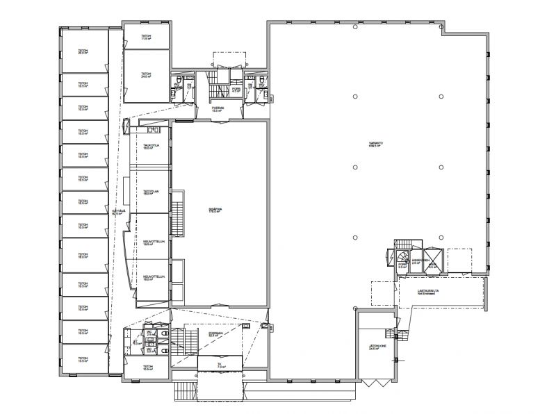
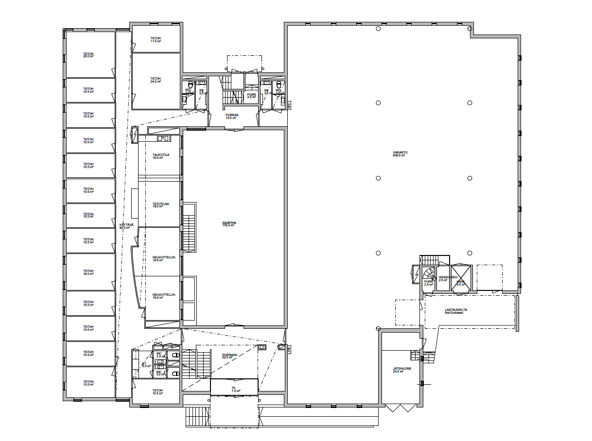
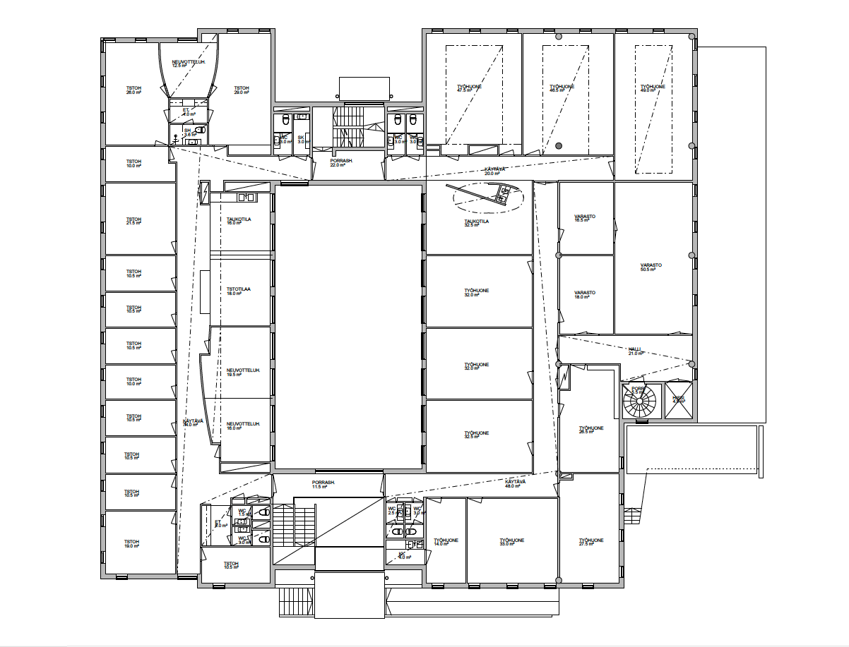
Vuokrattavasta 2877 m2 kokonaispinta-alasta on showroom-/näyttelytilaa 180 m2 ja varastoa 850 m2, josta 1. kerroksessa 640 m2 ja loput yläkerran varastotilaa. Muut tilat soveltuvat toimistotiloiksi tai kevyeen tuotantotilakäyttöön.
Rakennus on 90-luvulla rakennettu monipuoliseen käyttöön taipuva kokonaisuus, joka kattaa kaiken kaikkiaan pohjakerroksen ja kaksi kerrosta. Kellarikerroksessa on sauna, ruokala, sosiaalitilat. Varaston kantavuus on 800 kg/m2 ja kiinteistöllä on oma lastauslaituri.
Rakennuksella on runsaasti omia autopaikkoja (33 kpl) ja mahtavat puitteet sosiaalitiloille, joista saa pienellä päivityksellä haluamansa tasoiset.
Lisätietoja kohteesta sekä pdf-muotoiset pohjakuvat löydät verkkosivuiltamme: https://nurmikiinteistot.fi/toimitila/ralssintie-6-kiinteisto-pukinmaki-helsinki/
Kohteen videoesittely löytyy täältä: https://youtu.be/J-ArH-nK-J0
Tästä kohteesta voit olla yhteydessä pääkaupunkiseudun vuokrauspäällikköömme Artoon.
Puh. 044 906 2226 / Arto Haavisto
Katutasossa
Jaettavissa
Hissi
Lastauslaituri
Nurmi-Yhtiöt Oy
Nurmi Kiinteistöt
Jousitie 7
20760 Piispanristi
puh.
Näytä puhelinnumero
044 906 2226
/ Arto Haavisto (pk-seutu)
puh.
Näytä puhelinnumero
040 624 0344
/ Ilias Niemi (Varsinais-Suomi)
