Vuokrataan toimistotilat - Espoo
Länsituuli 1, Tapiola, 02100 Espoo #10779323
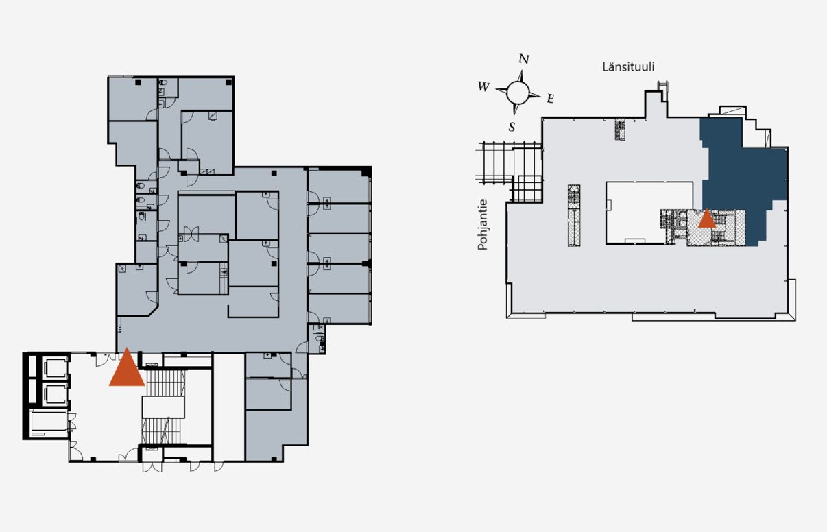
Siistiä toimistotilaa, ollut aiemmin lääkäriaseman käytössä. Osassa huoneista vesipisteet. Vuokrataan esim. väistötilaksi.
Länsikulma on Espoon Tapiolassa sijaitseva terveys- ja hyvinvointipalveluiden hyvän tuulen talo.
Länsikulma sijaitsee Tapiolan keskuksen ytimessä. Kiinteistössä toimivat mm. kuntosali, kampaamo, hammaslääkäriasema ja vuokrattavissa on mm. saunatilaa. Kellarissa on tarjolla vuokrattavia pienvarastotiloja. Sopimukset kohteeseen tehdään maaliskuu 2026 asti ja toistaiseksi voimassaolevina.
Lisätietoja numerosta 020 7290 710. Lisää kohteita osoitteessa www.premises.fi.
Energialuokka C2018Kerros: 2
CRE PREMISES
Puh. Näytä puhelinnumero 020 7290 710
Vantaankoskentie 14
01670 VANTAA
