Vuokrataan toimistotilat - Helsinki
Konepajankuja 6, Vallila, 00150 Helsinki #10779282
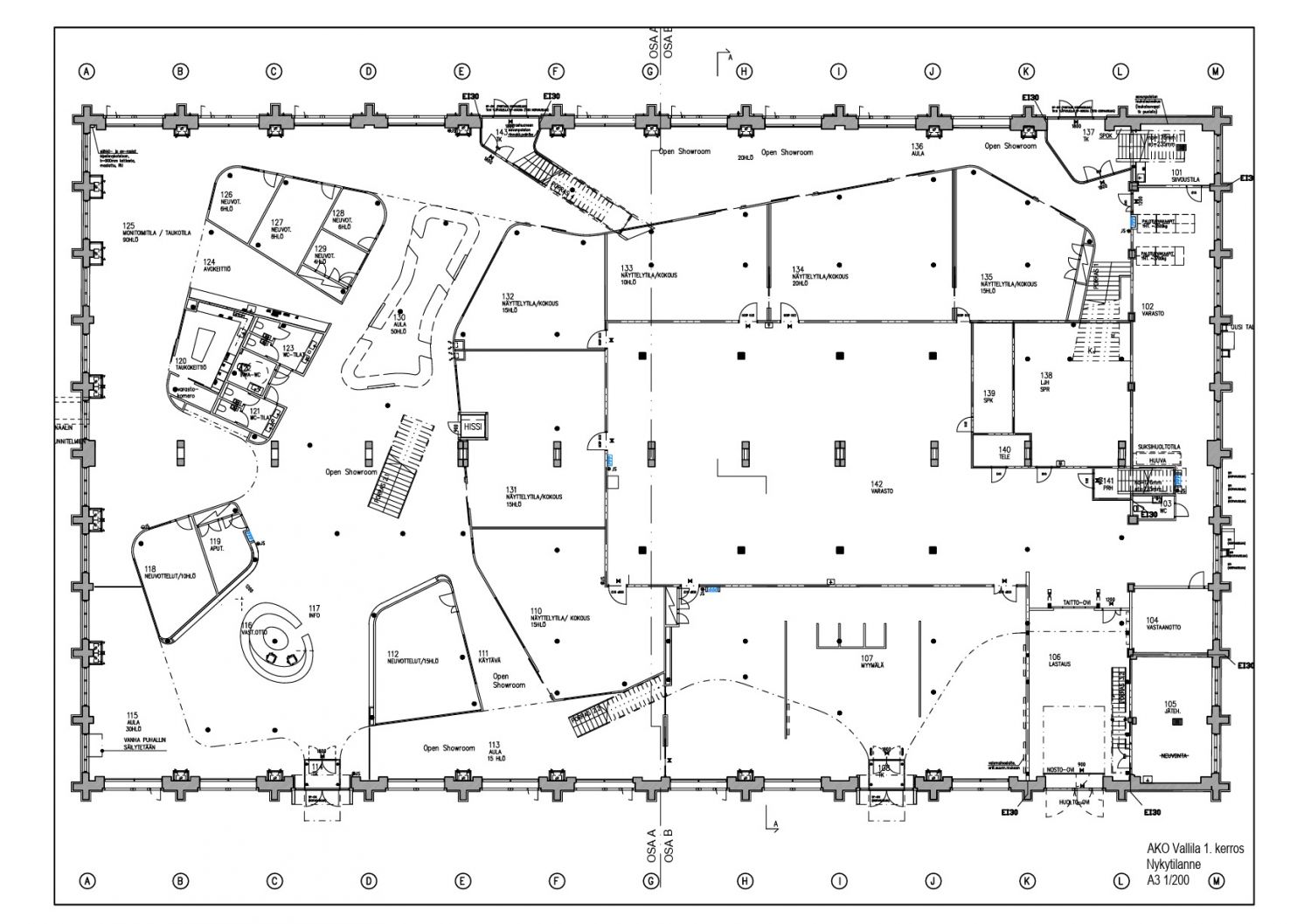
Ainutlaatuisuutta henkivät toimitilat koko talon vuokralaiselle. Ensimmäisessä kerroksessa upea aula ja vastaanotto toivottavat työntekijät sekä vierailijat tervetulleiksi. Kerroksesta löytyy myös useita neuvottelutiloja ja showroomeja sekä hieno lounge-/monitoimitila. Olemassa oleva Amer Sportsin myymälä voidaan muuttaa myös toimistotilaksi.
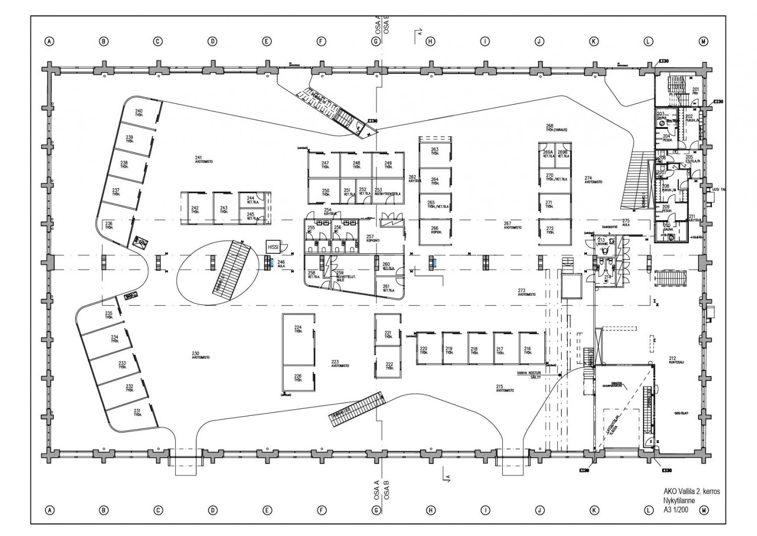
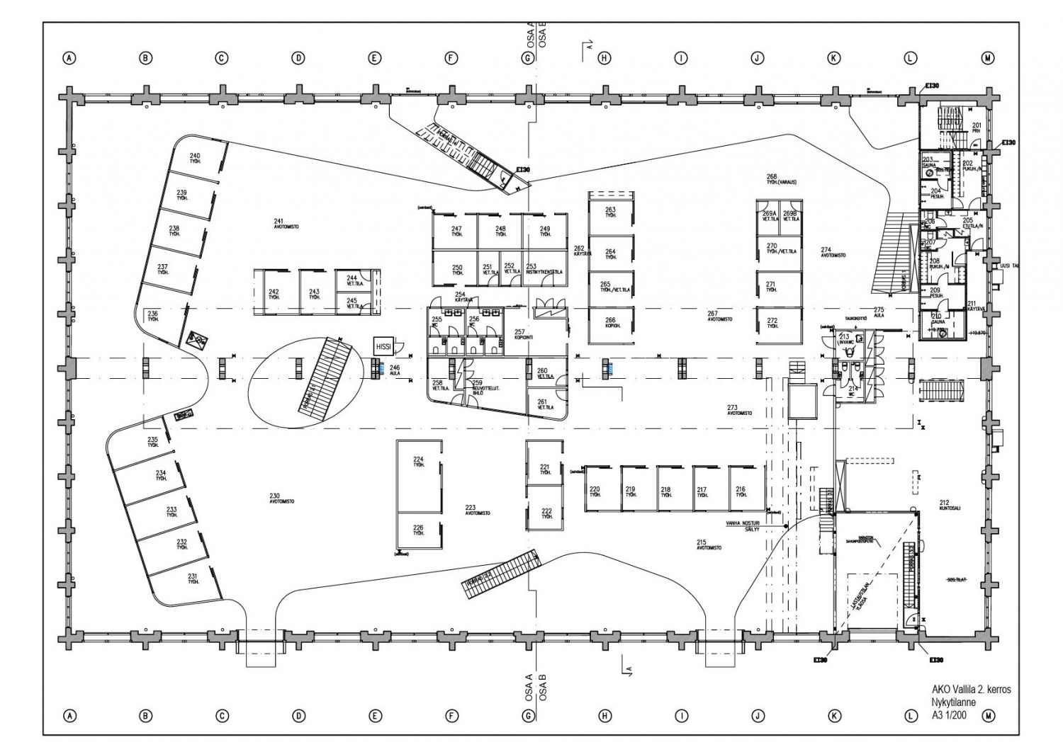
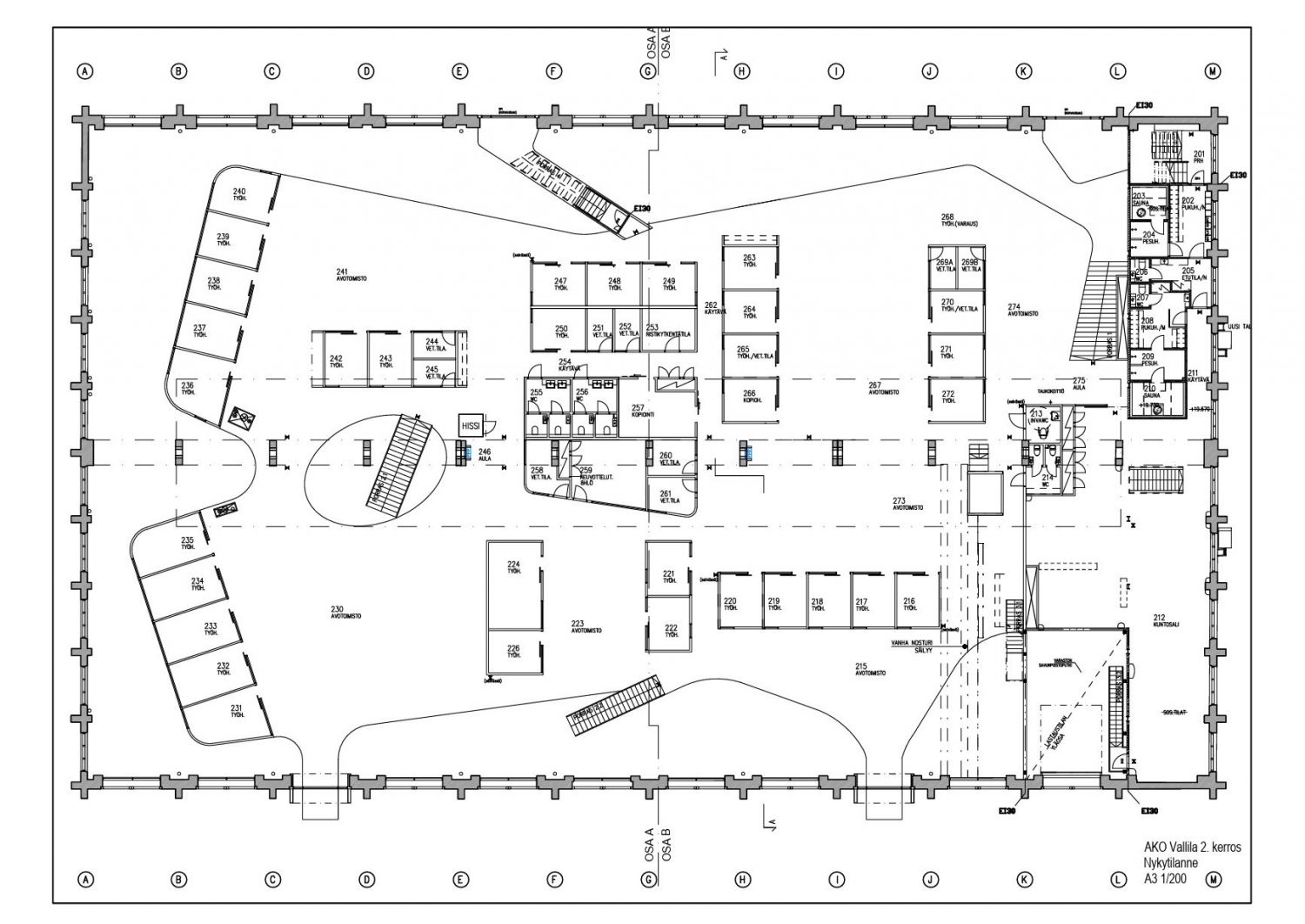
Toisessa kerroksessa on tehokasta avotilaa, neukkareita sekä toimisto- ja vetäytymishuoneita. Kerroksesta löytyy myös hieno kuntosali sekä oma saunaosasto.
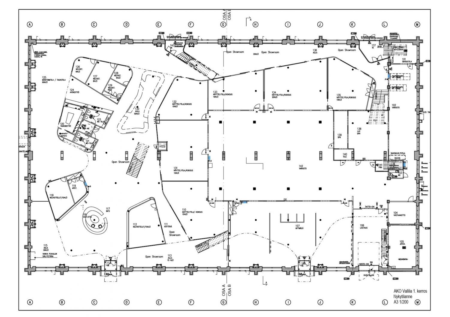
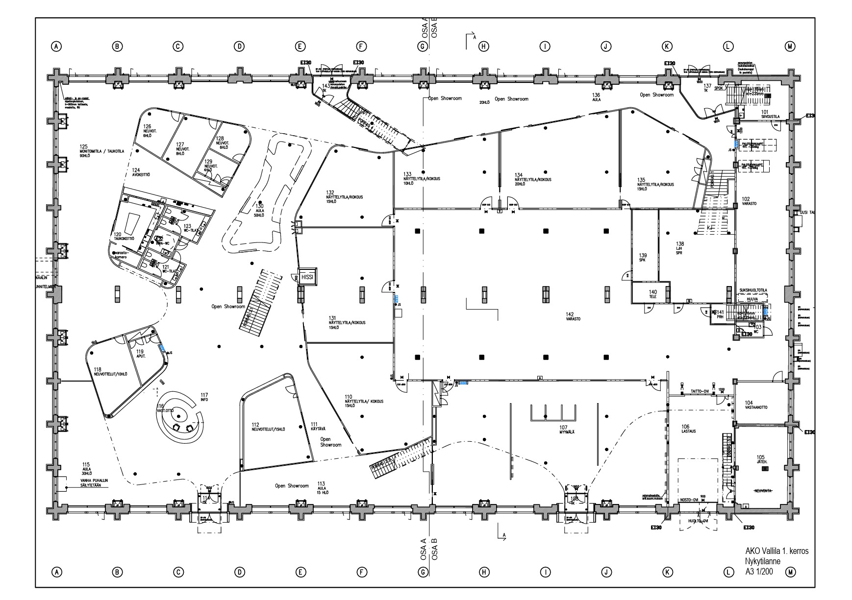
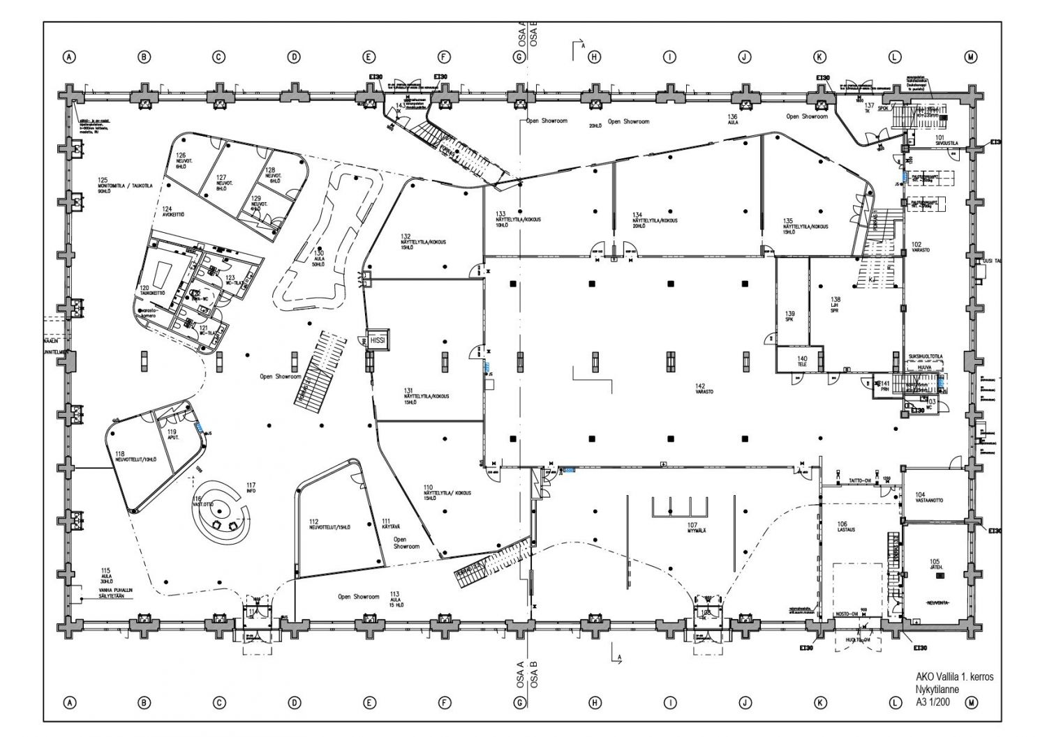
Pinta-alat jakautuvat seuraavasti:
- 1.krs toimisto 2 126 m2
- 1.krs varasto 710 m2 lastausovella
- 2.krs toimisto 1 792 m2
- 2.krs kuntosali + sauna 293 m2
Ilmoituksen kuvat antavat käsitystä kohteen arkkitehtuurista, laadusta sekä hienoista yksityiskohdista. Ota yhteyttä niin mennään katsomaan kohdetta myös paikan päälle!
Konepajankatu 6 on Vallilan Konepajan alueella sijaitseva teollisuushistoriallisesti ja rakennustaiteellisesti arvokas kohde. Kiinteistö on valmistunut vuonna 1919 Valtionrautateiden konepajan aluskehysosastoksi. Teollinen toiminta kiinteistöllä päättyi vuonna 1995, minkä jälkeen rakennus on saneerattu perusteellisesti uuteen käyttöönsä Amer Sportsin pääkonttorina. Kiinteistölle on myönnetty BREEAM In-Use, Very Good -sertifikaatti.
Croisette on uusi ja innovatiivinen toimitilojen välitysyritys Suomessa. Meillä on vahva halu auttaa teitä löytämään paras toimitilaratkaisu mahdollisimman vaivattomasti.
Huomaathan, että kaikki vapaat ja vapautuvat tilat ovat kauttamme saatavilla. Osa tiloista on hiljaisessa markkinoinnissa, mutta ottamalla meihin yhteyttä saat nekin tietoosi.
Palvelumme on tilanhakijoille täysin maksutonta.
Hissi
Croisette Real Estate Partner
Erottajankatu 5 A 6, 00130 Helsinki
Näytä puhelinnumero
+358 400 585 857
Croisette Vuokraus
Näytä puhelinnumero
+358400585857
