Vuokrataan toimistotilat - Helsinki
Urho Kekkosen Katu 4-6, Kamppi, 00100 Helsinki #10779263
Erittäin siistikuntoista toimistotilaa, joka vapautuu kesällä 2024. Muutostyöt sovittavissa. Koneellinen IV-tulo ja -poisto sekä huonekohtainen kaukojäähdytys. Tilaan tulee kuituyhteys. Rauhallinen sijainti F-portaassa, johon käynti sisäpihan kautta.
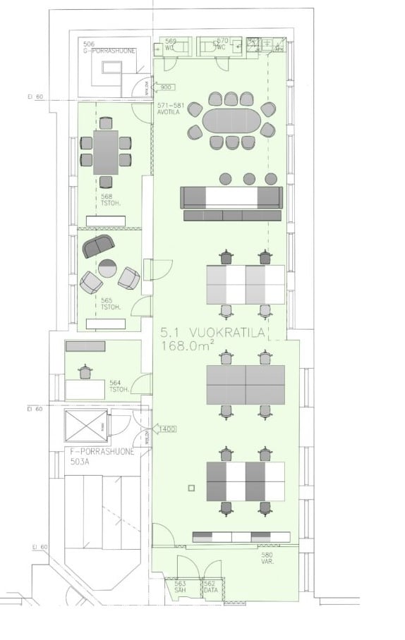
Tilassa kolme erikokoista työ- ja neuvotteluhuonetta, pieni varastotila, kaksi wc-tilaa ja pieni avokeittiö.
Vuonna 1931 asunnoiksi valmistunut kiinteistö, melkeinpä ikoninen talo jonka moni tuntee Tavastian pitkäaikaisena sijaintipaikkana. Talo aikanaan valmistui Kampinkadulle. Katu sai 1980 nykyisen nimensä legendaarisen presidentti Urho Kaleva Kekkosen mukaan, sillä hän asui perheineen neljännesvuosisadan ajan vuokralaisena Hämäläisten talossa 1931-1956, jolloin hän tuli valituksi Tasavallan Presidentiksi.
Kiinteistöstä on pidetty erinomaista huolta ja se kätkee sisäänsä rokkiklubin lisäksi toimistoja, lääkäri- ja silmälääkäriaseman, levykaupan, useita ravintoloita etc.
Sekä ilmanvaihto että kaistat datalle ovat kunnossa vaativaankin tarpeeseen.
Sijainti – no, kuinka se voisi olla keskeisempi – kaikki palvelut, metro, juna, ratikat, lounaat, viihde yms. – kaikki aivan vieressä. Sateen sattuessa kadun yli ja Kampin Keskuksen kautta sisäkulun kautta vaikka minne.
Croisette on uusi ja innovatiivinen toimitilojen välitysyritys Suomessa. Meillä on vahva halu auttaa teitä löytämään paras toimitilaratkaisu mahdollisimman vaivattomasti.
Huomaathan, että kaikki vapaat ja vapautuvat tilat ovat kauttamme saatavilla. Osa tiloista on hiljaisessa markkinoinnissa, mutta ottamalla meihin yhteyttä saat nekin tietoosi.
Palvelumme on tilanhakijoille täysin maksutonta.
Hissi
Croisette Real Estate Partner
Erottajankatu 5 A 6, 00130 Helsinki
Näytä puhelinnumero
+358 400 585 857
Croisette Vuokraus
Näytä puhelinnumero
+358400585857
