Vuokrataan liiketilat - Espoo
Puolikkotie 8, Matinkylä, 02230 Espoo #10779258
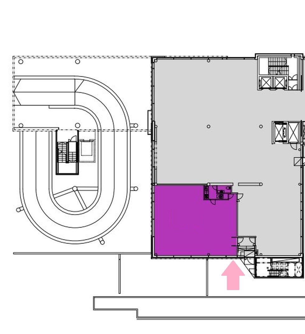
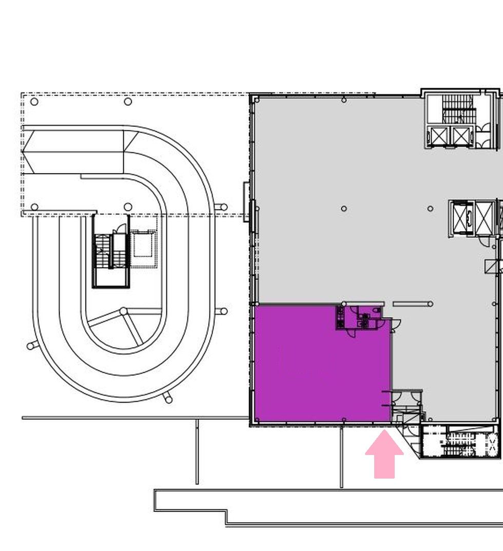
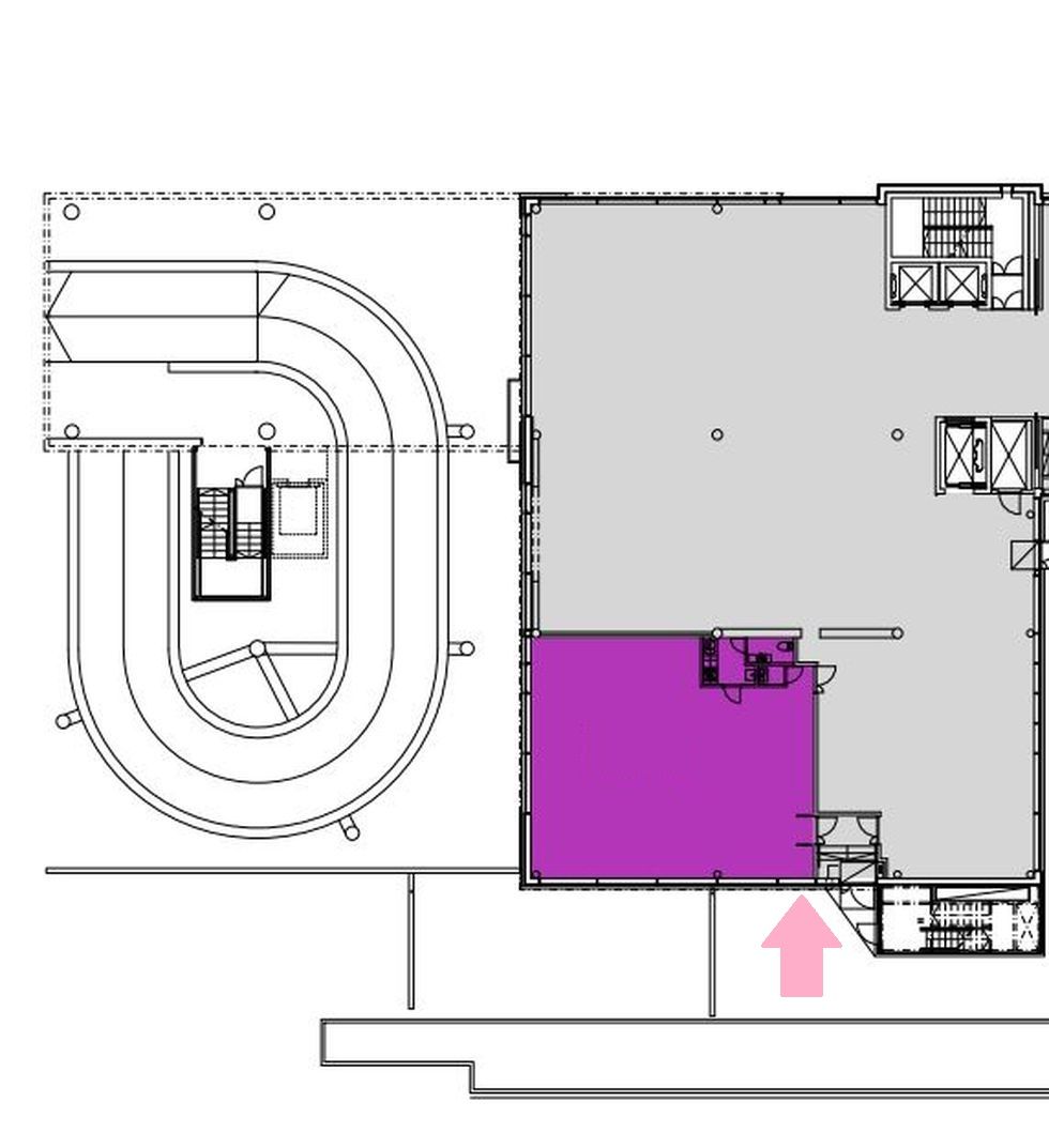
Vuokrattavissa ainutlaatuinen katutason 128 m2 toimitila, joka yhdistää ison talon edut sekä kompaktin ja tehokkaan pohjaratkaisun. Tilaan on oma sisäänkäynti myös ulkoa, jonka ansiosta tila taittuu toimiston ohella tarvittaessa liiketilaksi. Tila on valoisaa avotilaa, jossa oma keittiö ja WC.
Safiiri Business Park on kaunis ja moderni toimistokiinteistö aivan Iso Omenan palveluiden vieressä Länsiväylän varrella. Kohteen on valmistunut vuosina 2012-2013. Kiinteistölle on myönnetty myös LEED Core and Shell- sekä Gold-luokan ympäristösertifikaatit.
Safiirissa on hyvin kattavat palvelut – talossa työskenteleville tarjolla mm. aula- ja toimistopalvelu, vuokrattavia kokous- ja neuvottelutiloja, viihtyisä lounasravintola ja catering-palvelut sekä reilusti pysäköintitilaa. Autohallista löytyvät myös sähköauton latauspisteet.
Croisette on uusi ja innovatiivinen toimitilojen välitysyritys Suomessa. Meillä on vahva halu auttaa teitä löytämään paras toimitilaratkaisu mahdollisimman vaivattomasti.
Huomaathan, että kaikki vapaat ja vapautuvat tilat ovat kauttamme saatavilla. Osa tiloista on hiljaisessa markkinoinnissa, mutta ottamalla meihin yhteyttä saat nekin tietoosi.
Palvelumme on tilanhakijoille täysin maksutonta.
Hissi
Croisette Real Estate Partner
Erottajankatu 5 A 6, 00130 Helsinki
Näytä puhelinnumero
+358 400 585 857
Croisette Vuokraus
Näytä puhelinnumero
+358400585857
