Vuokrataan toimistotilat - Helsinki
Hämeentie 31, Sörnäinen, 00500 Helsinki #10778596
Hyväkuntoista toimistotilaa Sörkasta hyvien liikenneyhteyksein ääreltä. Huonejärjestys on joustavasti muunneltavissa tai tehtävissä vaikka kokonaan avotoimistoksi. Vuokrattavissa on monenkokoisia tilavaihtoehtoja alkaen n. 250 m2. Näkyvä sijainti Kurvissa. SOITA ja SOVI ESITTELY! puh: 09 7745 100. palvelumme on tilanhakijalle maksutonta
Osoite
Hämeentie 31, 00500 Helsinki
Tilatyyppi
Toimistotilaa
249 m2
Tilajako
Jaettavissa
esim. 249 m2, 329 m2, 485 m2 557 m2, 670 m2.
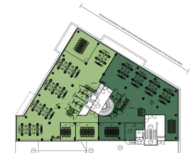
Pohjapiirros
Kiinteistö
Liike- ja toimistotalo joka on täydellisesti peruskorjattu.
Sijainti
Hämeentien Kurvi
Pysäköinti
Pyöräparkki ja autopaikkoja pihakannella, lisäksi paikkoja voi vuokrata läheisestä parkkihallista.
Palvelut
Kaikki lähellä
Kulkuyhteydet
Metro-, ratikka-, bussit kulkevat talon edestä.
Vapautuu
Heti
Kerros
4 / 9
Energiatehokkuusluokka
Ei lain edellyttämää energiatodistusta
Näkyvällä paikalla
Jaettavissa
Hissi
Ota yhteyttä
Senaatin Notariaatti Oy LKV
Lämmittäjänkatu 4 A
FIN-00880 Helsinki
Tel:
Näytä puhelinnumero
+358 9 7745 100
Pyydä lisätietoa
