Videoesittely
Vuokrataan toimistotilat - Helsinki
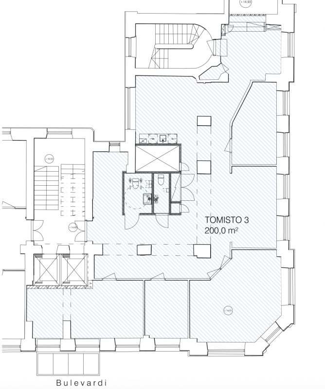
Bulevardi 6, Keskusta, 00100 Helsinki #10778568
Arvokas toimistotila Bulevardin kulmasta, ruttopuistoa vastapäätä.
Osoite
Bulevardi 6, 00100 Helsinki
Tilatyyppi
Toimistotilaa
200 m2
Kiinteistö
Tämä valoisa ja korea toimistotila sijaitsee kiinteistön 2. kerroksessa. Toimistotilaan on sisäänkäynti suoraan Bulevardilta upean hissiaulan kautta sekä kahdesta rappukäytävästä sisäpihalta.
Toimistossa on nykyjaolla;
- eteinen
- 3 kpl laadukasta toimistohuonetilaa
- avotoimisto
- 2 kpl wc
- avokeittiö ja taukotila
- varastohuone
- 2 kpl sisäänkäyntiä
Toimistotilan ikkunat ovat suoraan Bulevardille, Yrjönkadulle, Ruttopuistoon sekä kiinteistön sisäpihalle.
Toimistossa on jäähdytetty koneellinen ilmastointi ja Cat 6a-tasoiset IT-valmiudet sekä upea parkettilattia.
Koko kiinteistö on saneerattu kestävän kehityksen periaatteita noudattaen jolloin se antaa vuokralaiselle hyvät lähtökohdat toteuttaa ympäristöämme säästävää ja kestävää kehitystä tukevaa yrityskulttuuria.
Toimistossa on nykyjaolla;
- eteinen
- 3 kpl laadukasta toimistohuonetilaa
- avotoimisto
- 2 kpl wc
- avokeittiö ja taukotila
- varastohuone
- 2 kpl sisäänkäyntiä
Toimistotilan ikkunat ovat suoraan Bulevardille, Yrjönkadulle, Ruttopuistoon sekä kiinteistön sisäpihalle.
Toimistossa on jäähdytetty koneellinen ilmastointi ja Cat 6a-tasoiset IT-valmiudet sekä upea parkettilattia.
Koko kiinteistö on saneerattu kestävän kehityksen periaatteita noudattaen jolloin se antaa vuokralaiselle hyvät lähtökohdat toteuttaa ympäristöämme säästävää ja kestävää kehitystä tukevaa yrityskulttuuria.
Sijainti
Kiinteistö sijaitsee Bulevardin varrella Ruttopuistoa vastapäätä. Ravintola Gaijinin yläpouolella.
Pysäköinti
Bulevardin Kulmassa voit pysäköidä suoraan rakennuksen alapuolelle. Q-Park-pysäköintihalli tarjoaa peräti 600 autopaikkaa sekä suoran pääsyn Bulevardi 2-4:een omalla katutason hissillä. Lämpimässä hallissa on mahdollisuus pysäköintiin niin lyhytaikaisesti kuin pidemmälläkin sopimuksella.
Pyöräilijöille on rakennettu erilliset suihku- ja sosiaalitilat kiinteistön kellaritiloihin.
Pyöräilijöille on rakennettu erilliset suihku- ja sosiaalitilat kiinteistön kellaritiloihin.
Palvelut
Kiinteistössä on vuokrattavissa neuvottelukeskus kaikilla Hotelli Klaus K:n palveluilla.
Kulkuyhteydet
Raitiovaunu ja bussipysäkki suoraan kiinteistön edessä.
Rautatieasema 650 m
Kamppi 800 m
Rautatieasema 650 m
Kamppi 800 m
Vuokralaisia
Samassa kiinteistössä toimii;
Granit
Helsinki Day Spa
Hotelli Klaus K
Ravintola Gaijin
Ravintola Pastor
Ravintola Toscanini
Silmäasema
Granit
Helsinki Day Spa
Hotelli Klaus K
Ravintola Gaijin
Ravintola Pastor
Ravintola Toscanini
Silmäasema
Vapautuu
Heti
Energiatehokkuusluokka
Ei lain edellyttämää energiatodistusta
Näkyvällä paikalla
Ota yhteyttä
Comreal Oy LKV
Joonas Nilsson
Näytä puhelinnumero
044 328 3425
Läkkisepänkuja 6, 00620 Helsinki
Comreal on valtakunnallinen, asiantunteva ja aktiivinen kiinteistöalan kumppani, joka palvelee sekä kiinteistönomistajia että toimitilojen käyttäjiä. Toimintamme ydin on yksinkertainen: tarjota erinomaista palvelua kaikille.
Pyydä lisätietoa
