Vuokrataan toimistotilat - Helsinki
Konepajankuja 6, Vallila, 00510 Helsinki #10778509
Toimisto- ja varastotilaa Vallilan Konepajan alueella.
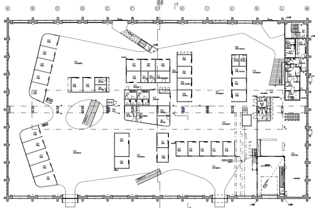
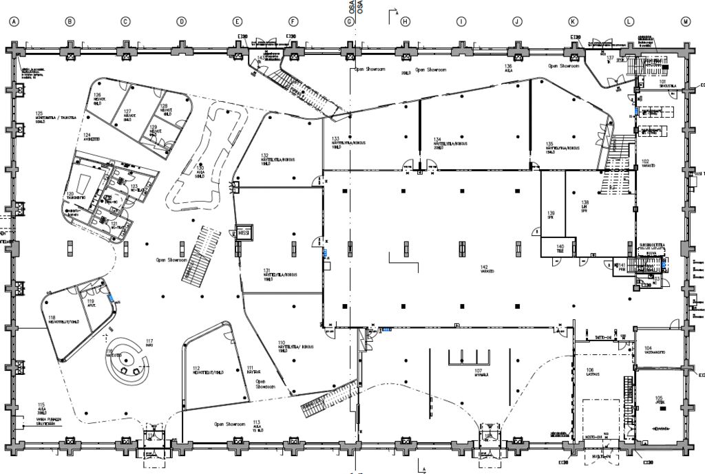
Tämä 4921 m² toimitilakokonaisuus koostuu 1. kerroksen 2126 m² toimistotilasta ja 710 m² varastotilasta sekä 2. kerroksen 1792 m² toimistotilasta ja 293 m² kuntosali- ja saunatiloista. Tila on näyttävä ja erinomaisessa kunnossa.
Ensimmäisessä kerroksessa on tyylikäs aula ja vastaanottotila, neuvottelutiloja sekä showroomeja ja hieno lounge-/monitoimitila. Varastotilaan on lastausovi. Toisessa kerroksessa on työ- ja neuvotteluhuoneita, avotilaa, vetäytymistiloja sekä hieno kuntosali ja saunaosasto.
Konepajankatu 6 sijaitsee Helsingin Vallilassa, Konepajan alueella. Kohde on teollisuushistoriallisesti sekä rakennustaiteellisesti arvokas. Se on 1919 valmistunut Valtionrautateiden konepajan aluskehysosastoksi. Rakennuksen mittava saneeraus valmistui vuonna 2014. Kiinteistöllä on BREEAM In-Use Very Good-tason sertifikaatti.
Kysy lisää numerosta 044 723 4700 tai info@bref.fi. Palvelumme on tilanhakijoille ilmainen.
Bureau Real Estate Finland Oy
Lars Sonckin kaari 16, 02600 Espoo
Näytä puhelinnumero
0447234700
Bureau Real Estate Finland Oy
https://www.bref.fi