Vuokrataan toimistotilat - Helsinki
Kuortaneenkatu 5, Vallila, 00101 Helsinki #10778466
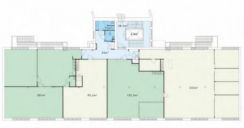
Vuokrattavana 4. kerroksen hyväkuntoista ja modernia toimistotilaa. Tilassa on avotoimistotilaa, erikokoisia kokoustiloja sekä keittiö- ja wc-tilat.
Osoite
Kuortaneenkatu 5, 00101 Helsinki
Tilatyyppi
Toimistotilaa
201 m2
Kiinteistö
Vuokrattavana 4. kerroksen hyväkuntoista ja modernia toimistotilaa. Tilassa on avotoimistotilaa, kolme työhuohetta ja taukokeittiö. Tilaa voidaan muokata vuokralaisen toiveiden mukaan.
Sijainti
Vallila, Helsinki
Pysäköinti
Kiinteistön edessä ilmaista pysäköintitilaa.
Palvelut
Alueella toimii useita lounasravintoloita lähietäisyydellä.
Kulkuyhteydet
-Juna
-Bussi
-Raitiovaunu
-Oma auto
-Bussi
-Raitiovaunu
-Oma auto
Vapautuu
Heti
Kerros
4
Energiatehokkuusluokka
Ei lain edellyttämää energiatodistusta
Näkyvällä paikalla
Hissi
Ota yhteyttä
REALIUM OY LKV
Tammasaarenkatu 1, 00180 Helsinki
Vaihde:
Näytä puhelinnumero
010 326 346
Tuomo Mäkelä
tuomo.makela@realium.fi
p.
Näytä puhelinnumero
044 050 1158
Joel Keto
joel.keto@realium.fi
p.
Näytä puhelinnumero
045 317 0330
KAIKKI TILAVAIHTOEHDOT KERRALLA!
SOITA - MEILAA JA TILAA NÄYTTÖ!
Ilmainen palvelu tilanhakijoille.
Kartoitamme parhaat tilavaihtoehdot.
Kaikki kohteet eivät ole netissä.
Pyydä lisätietoa
