Vuokrataan varastotilat - Helsinki
Hankasuontie 3, Konala, 00390 Helsinki #10778060
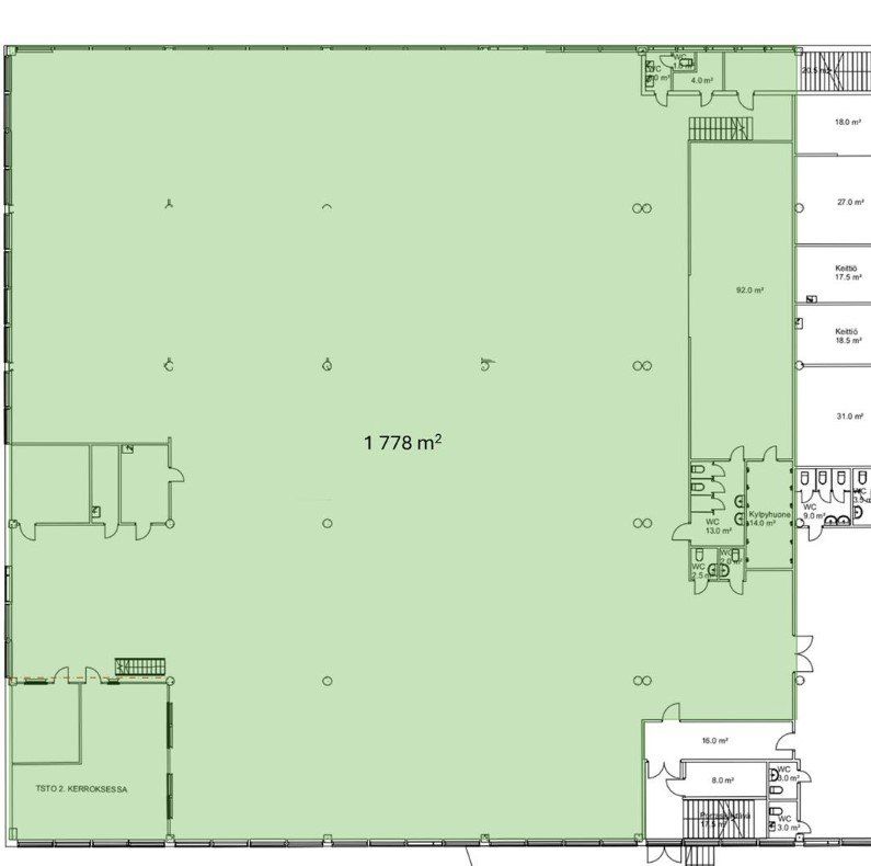
Vuokrataan varastotilaa Konalasta
Osoite
Hankasuontie 3, 00390 Helsinki
Tilatyyppi
Varastotilaa
1778 m2
Muuta
Vuokrataan hyvien liikenneyhteyksien varrelta siistiä varastotilaa. Vuokrattavana on 1. kerroksen 1778m2 tila. Kiinteistön julkisivu saneerataan vuoden 25 aikana.
Kiinteistö sijaitsee hyvien liikenneyhteyksien varrella. Aivan vieressä kulkee Vihdintie ja Konalan palvelut ovat lähettyvillä.
Tilan korkeus on 5m, joten tila soveltuu hyvin varastointiini. Logistiikkaa ovat helpottamassa kaksi nosto-ovea sekä yksi lastausyhteys. Mahdollisuus on myös toiseen lastausyhteyteen.
Tervetuloa tutustumaan, varaathan välittäjältä oman esittelyaikasi. Voit kysyä meiltä myös muita sopivia vaihtoehtoja, kauttamme löydät juuri Teidän tarpeisiinne sopivat tilat.
Palvelumme on tilanhakijalle veloitukseton!
Kiinteistö sijaitsee hyvien liikenneyhteyksien varrella. Aivan vieressä kulkee Vihdintie ja Konalan palvelut ovat lähettyvillä.
Tilan korkeus on 5m, joten tila soveltuu hyvin varastointiini. Logistiikkaa ovat helpottamassa kaksi nosto-ovea sekä yksi lastausyhteys. Mahdollisuus on myös toiseen lastausyhteyteen.
Tervetuloa tutustumaan, varaathan välittäjältä oman esittelyaikasi. Voit kysyä meiltä myös muita sopivia vaihtoehtoja, kauttamme löydät juuri Teidän tarpeisiinne sopivat tilat.
Palvelumme on tilanhakijalle veloitukseton!
Vapautuu
Kysy
Kerros
1
Ota yhteyttä
Tuloskiinteistöt Oy
Rikhardinkatu 2 B 5, 00130 Helsinki
Näytä puhelinnumero
(09) 6841 620
Nina Meyke
Commercial Real Estate Advisor
Näytä puhelinnumero
+358 50 466 1519
Otto Ahtola
Commercial Real Estate Advisor
Näytä puhelinnumero
+358 40 042 2830
Pyydä lisätietoa
