Vuokrataan varastotilat - Helsinki
Eteläesplanadi 20, Kaartinkaupunki, 00130 Helsinki #10778025
Vuokrattavana varastotilaa Kiinteistö Oy Brondankulmasta joka on vuonna 1975 valmistunut liike- ja toimistorakennus Eteläesplanadin ja Korkeavuorenkadun kulmassa. Brondankulma on täysin uudistettu sisätiloiltaan vuonna 2013 ja vastaa nykypäivän monikäyttötiloja sisältäen toimisto- ja liiketilojen lisäksi ravintolatoimintaa.
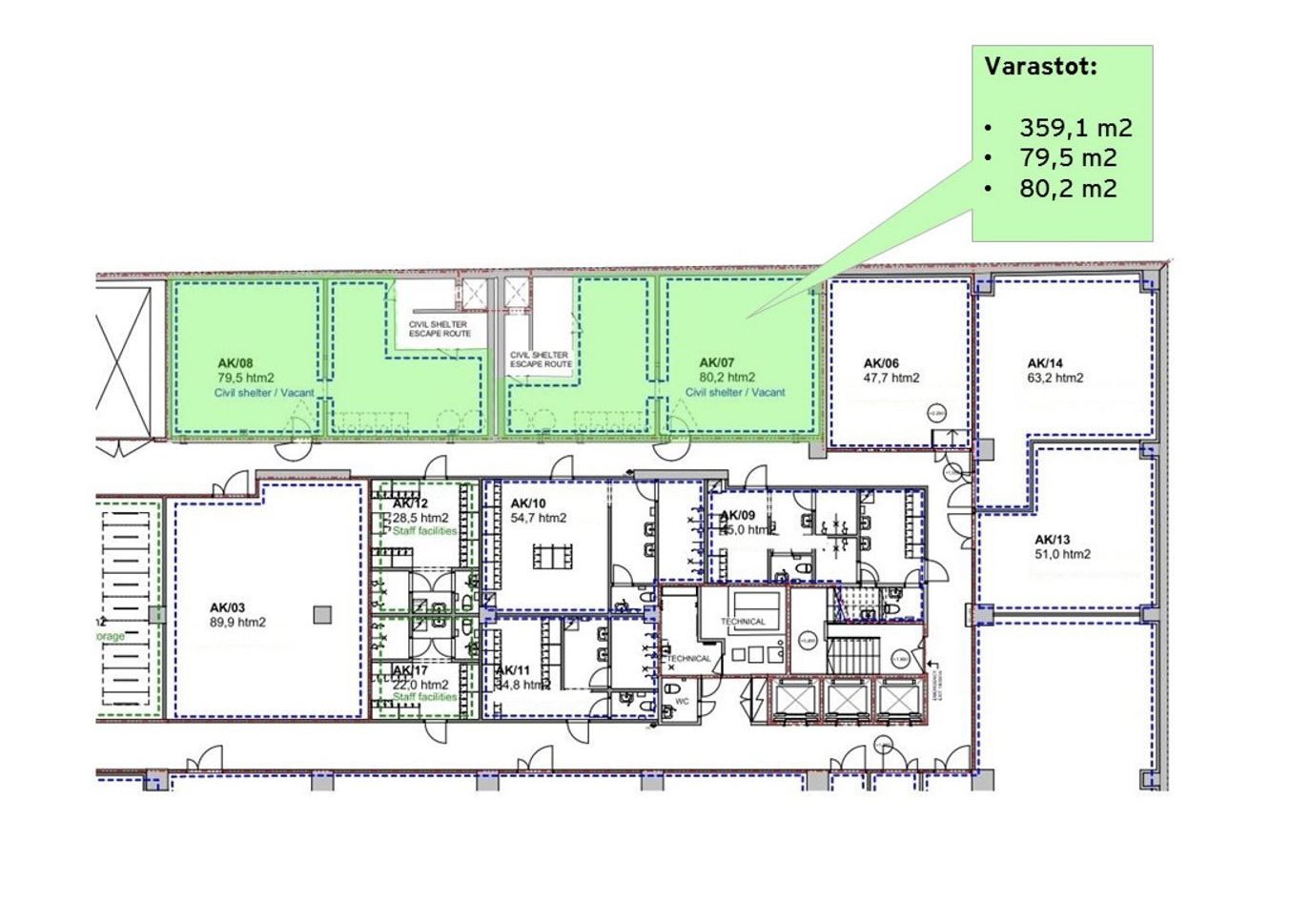
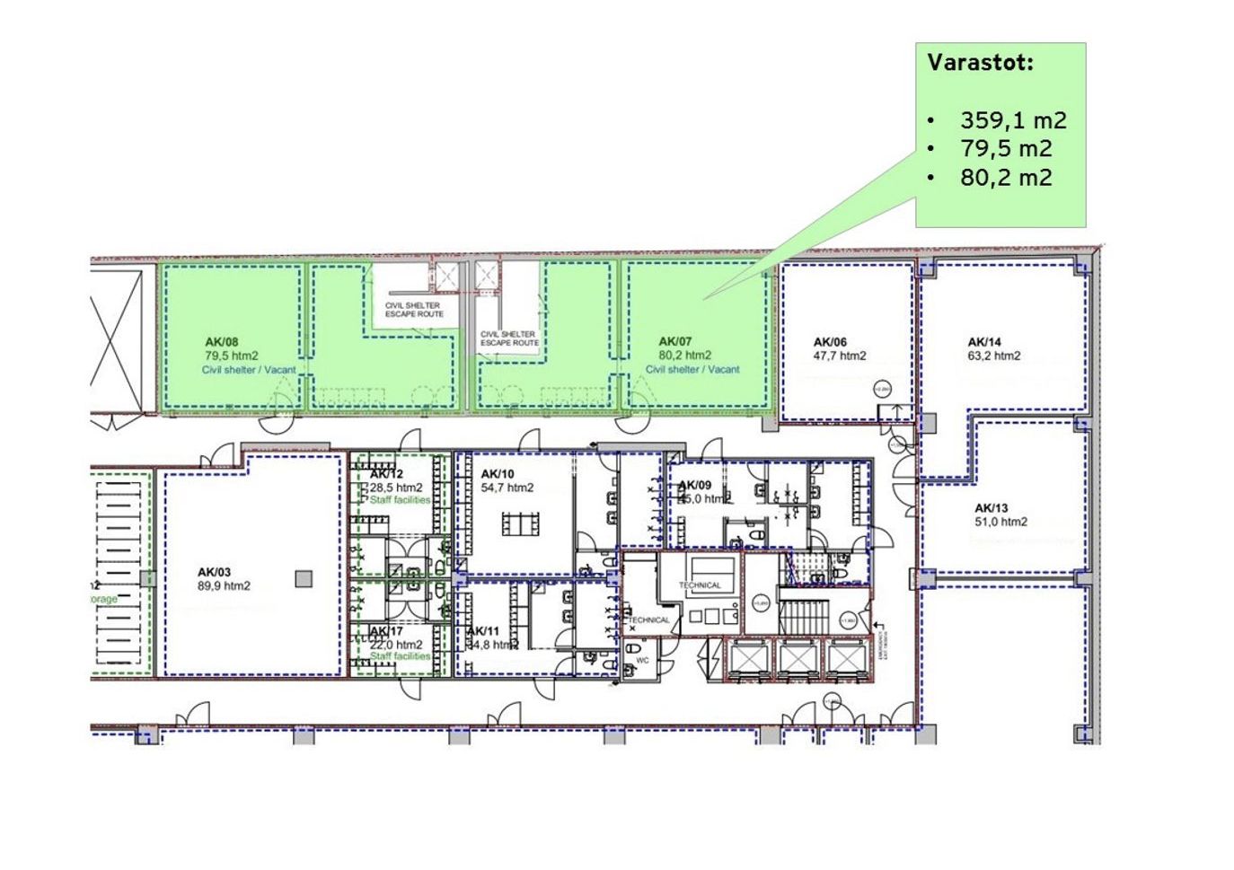
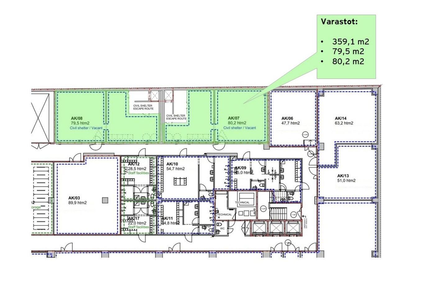
Vapaat tilakoot: 359,1 m2, 79,5 m2 ja 80,2 m2. Varastotilat ovat -2 kerroksessa johon on henkilö-/tavarahissiyhteys.
Kiinteistö sijaitsee loistavalla sijainnilla Helsingin ydinkeskustassa joka takaa loistavat kulkuyhteydet niin julkisilla kuin autolla. Kaikki ydinkeskustan palvelut löytyvät kävelyetäisyydeltä.
Vuokrataan varastotilaa Helsingin keskustassa Eteläesplanadilla. Tila sijaitsee -2 kerroksessa johon on henkilö-/tavarahissiyhteys. Tilankoko: 359,1 m2.
Lisätietoja numerosta 020 7290 710. Lisää kohteita osoitteessa www.premises.fi.
Kohteella ei ole lain edellyttämää energiatodistusta.Kerros: K2
CRE PREMISES
Puh. Näytä puhelinnumero 020 7290 710
Vantaankoskentie 14
01670 VANTAA
