Vuokrataan toimistotilat - Helsinki
Salmisaarenaukio 1, Ruoholahti, 00180 Helsinki #10778014
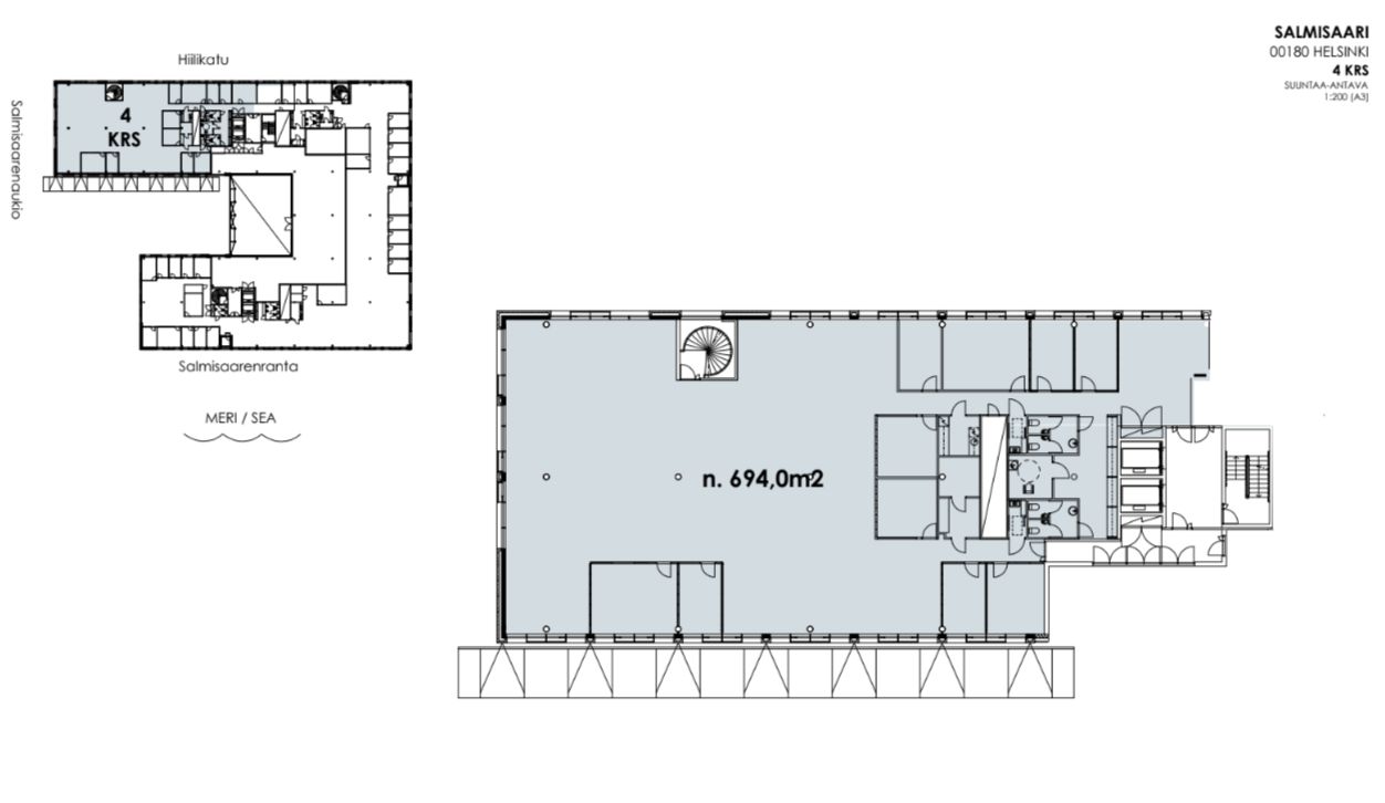
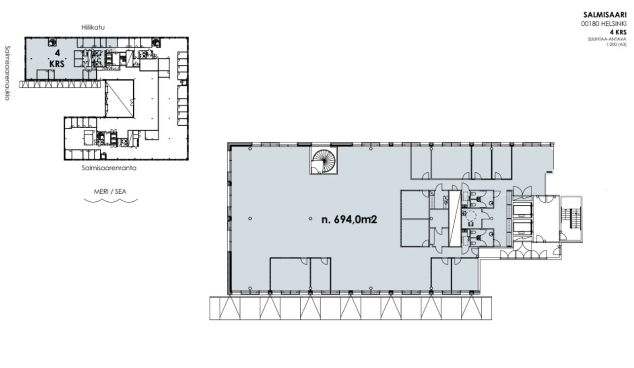
Pääkonttoritasoinen koko 4. kerroksen käsittävä toimistotila merinäköalalla. Tilan huonekorkeus on neljä metriä ja ikkunat ulottuvat lattiasta kattoon. Huonejako helposti muokattavissa asiakkaan toiveiden mukaiseksi. Salmisaarenaukio 1:ssä on hyvät palvelut, mm. aulapalvelu, lounasravintola ja neuvottelutiloja. Bussipysäkki ja kaupunkipyöräasema talon edessä.
Vuonna 2007 valmistuneen kiinteistön on suunnitellut arkkitehtitoimisto Helin ja Co. Tilat ovat muuntojoustavia ja useimmista aukeaa kaunis merinäköala. Kiinteistössä aulapalvelu, yhteiskäyttöisiä neuvottelutiloja sekä lounasravintola, pyöräilijöille säilytys- ja suihkutilat. Lisäksi mahdollisuus vuokrata pysäköintioikeuksia pysäköintihallista.
Ruoholahdessa on erinomainen palveluvalikoima, esimerkiksi viereisessä kiinteistössä Salmisaaren liikuntakeskus, joka tarjoaa monipuolisesti liikuntapalveluja.
Kohteen omistaa Castellum.
Lisätietoja numerosta 020 7290 710. Lisää kohteita osoitteessa www.premises.fi
Kohteella ei ole lain edellyttämää energiatodistusta tai energialuokka ei tiedossa.Kerros: 4
CRE PREMISES
Puh. Näytä puhelinnumero 020 7290 710
Vantaankoskentie 14
01670 VANTAA
