Vuokrataan toimistotilat - Helsinki
Hiomotie 3, Pitäjänmäki, 00380 Helsinki #10778005
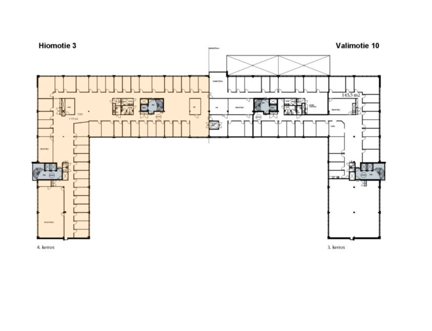
Iso toimistotila rakennuksen neljännessä kerroksessa. Vuokrattavissa myös koko kerros, joka jatkuu Valimotie 10 puolelle (2. ja 3.) 2978 m2 ja 2341 m2.
Suunnittelemme mahdolliset remontit ja muutostyöt aina asiakaskohtaisesti vuokraneuvottelujen yhteydessä.
Kiinteistön vuokralaisten käytettävissä Valimotie 13 A:n kuntosali ja pysäköintihalli sekä yksi alueen suosituimmista ja suurimmista lounasravintoloista.
Koneellinen jäähdytetty ilmanvaihto/erillisjäähdytys. Autopaikkoja 155 kpl, autohallissa, katoksessa ja pihapaikoilla. Lastauslaituri ja tavarahissi kohteen kolmeen ensimmäiseen kerrokseen.
Lisätietoja ja kohde-esittelyt numerosta 020 7290 710. Lisää kohteita osoitteessa www.premises.fi.
Kohteella ei ole lain edellyttämää energiatodistusta tai energialuokka ei tiedossa.Kerros: 4
CRE PREMISES
Puh. Näytä puhelinnumero 020 7290 710
Vantaankoskentie 14
01670 VANTAA
