Vuokrataan toimistotilat - Helsinki
Hermannin rantatie 8, Hermanni, 00580 Helsinki #10778004
Vuokrataan erittäin korkeatasoista uutta toimistotilaa Kalasatamasta, Rantatie Business Parkista. Rantatien käyttäjiä palvelevat kolme laadukasta, eri tyyppistä ravintolaa sekä edustavat ja toimivat neuvottelutilat.
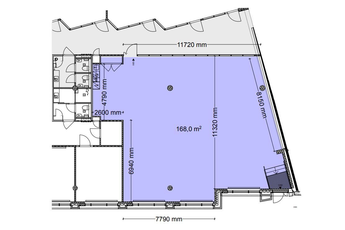
Vapaata tilaa yht. noin 5000 m2 rakenteilla Business Parkin uuteen Loikka -taloon. Tilat räätälöidään asiakkaan tarpeisiin sopiviksi. Loikka talolle tyypillistä korkean laadun lisäksi ovat suuret lähes 3 metriä korkeat ikkunat ja kattoterassi. Ohessa havainnollistavia kuvia Loikasta, sekä business parkin jo valmiista, Kasvu -talon neuvotteluhuoneista ja ravintoloista.
Business Park koostuu kolmesta talosta, joista Original on valmistunut vuonna 2010, Kasvu, vuonna 2017 ja uusin Loikka rakennus valmistuu kesällä 2019. Business Parkin asiakkaita palvelevat laadukkaat ja edustavat aula-, ravintola- ja neuvottelutilat sekä auditorio ja pysäköintihalli. Lisäksi talossa on käytössä vierasparkki, pyöräparkki, sosiaali- ja suihkutilat, autopesula, suutari ja hierontapalvelut.
Lisätietoja 020 7290 710. Lisää kohteita premises.fi.
Kohteella ei ole lain edellyttämää energiatodistusta tai energialuokka ei tiedossa.Kerros: 1
CRE PREMISES
Puh. Näytä puhelinnumero 020 7290 710
Vantaankoskentie 14
01670 VANTAA
