Vuokrataan toimistotilat - Espoo
Lars Sonckin Kaari 10-16, Leppävaara, 02600 Espoo #10777951
Tasokasta toimistotilaa Espoon Leppävaarasta
Osoite
Lars Sonckin Kaari 10-16, 02600 Espoo
Tilatyyppi
Toimistotilaa
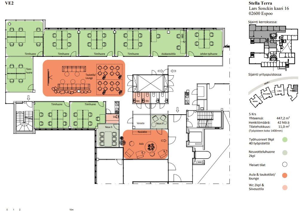
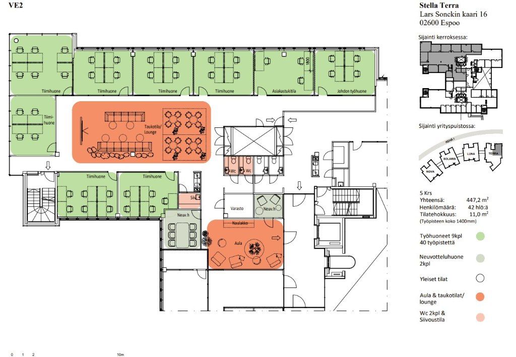
447 m2
Pysäköinti
Hallissa
Muuta
Vuokrataan tyylikäs 447m2 toimistotila Espoon Leppävaarassa, Pohjois-Euroopan suurimmassa teknologiakeskittymässä. Toimiston pohjaratkaisu ja viimeistely voidaan suunnitella yhdessä tulevan vuokralaisen kanssa.
Kuvat ovat esimerkkikuvia asiakkaille toteutetuista ratkaisuista.
Kiinteistö Stella Business Park on juuri läpikäynyt mittavan uudistuksen. Ennen kaikkea yrityspuistossa on panostettu palvelutarjontaan, työviihtyvyyteen ja hyvinvointia lisääviin ratkaisuihin. Tarjolla on mm. aula- ja postitus- ja assistenttipalvelu, avara viihtyisä kuntosali, juuri valmistunut auditorio, upeat kattokerroksen saunatilat, parturi-kampaamo, neuvottelukeskus, autopesula, renkaidenvaihtopalvelu sekä suosittu lounasravintola. Lisäksi ympärillä on lukuisia muita lounasravintoloita.
Kiinteistölle on myönnetty BREEAM In-Use ympäristösertifioinnin Very Good -taso. Stellan ympäristöystävälliset muunneltavat tilat sopivat kaikenkokoisille toimijoille ja tarvittaessa muuttuvat yrityksesi mukana. Sekä yhteistiloissa että toimistoissa on raikas moderni ilme, joten tänne on aina mukava tulla!
Stella Business Parkin sijainti on erinomainen, kaukana keskustan ruuhkista, mutta silti lähellä kaikkea. Kehä I on aivan vieressä ja Leppävaaran asema Sellon palveluineen on vain 15 minuutin kävelymatkan päässä. Alueen vetovoimaisuutta lisää myös Raide-Jokeri. Kahdessa suuressa parkkihallissa on runsaasti parkkipaikkoja ja sähköauton latauspisteitä.
Tervetuloa tutustumaan! Mikäli tämä kohde ei vastaa toiveitanne, ota yhteyttä, etsimme juuri teille sopivan tai räätälöidyn toimitilan. Palvelumme on vuokralaisille veloitukseton.
Kuvat ovat esimerkkikuvia asiakkaille toteutetuista ratkaisuista.
Kiinteistö Stella Business Park on juuri läpikäynyt mittavan uudistuksen. Ennen kaikkea yrityspuistossa on panostettu palvelutarjontaan, työviihtyvyyteen ja hyvinvointia lisääviin ratkaisuihin. Tarjolla on mm. aula- ja postitus- ja assistenttipalvelu, avara viihtyisä kuntosali, juuri valmistunut auditorio, upeat kattokerroksen saunatilat, parturi-kampaamo, neuvottelukeskus, autopesula, renkaidenvaihtopalvelu sekä suosittu lounasravintola. Lisäksi ympärillä on lukuisia muita lounasravintoloita.
Kiinteistölle on myönnetty BREEAM In-Use ympäristösertifioinnin Very Good -taso. Stellan ympäristöystävälliset muunneltavat tilat sopivat kaikenkokoisille toimijoille ja tarvittaessa muuttuvat yrityksesi mukana. Sekä yhteistiloissa että toimistoissa on raikas moderni ilme, joten tänne on aina mukava tulla!
Stella Business Parkin sijainti on erinomainen, kaukana keskustan ruuhkista, mutta silti lähellä kaikkea. Kehä I on aivan vieressä ja Leppävaaran asema Sellon palveluineen on vain 15 minuutin kävelymatkan päässä. Alueen vetovoimaisuutta lisää myös Raide-Jokeri. Kahdessa suuressa parkkihallissa on runsaasti parkkipaikkoja ja sähköauton latauspisteitä.
Tervetuloa tutustumaan! Mikäli tämä kohde ei vastaa toiveitanne, ota yhteyttä, etsimme juuri teille sopivan tai räätälöidyn toimitilan. Palvelumme on vuokralaisille veloitukseton.
Vapautuu
Kysy
Kerros
5
Ota yhteyttä
Tuloskiinteistöt Oy
Rikhardinkatu 2 B 5, 00130 Helsinki
Näytä puhelinnumero
(09) 6841 620
Nina Meyke
Commercial Real Estate Advisor
Näytä puhelinnumero
+358 50 466 1519
Jorma Ryynänen
Commercial Real Estate Advisor LKV, LVV
Näytä puhelinnumero
+358 40 708 4064
Pyydä lisätietoa
