Vuokrataan tuotantotilat - Pirkkala
Vesalantie 14, 33960 Pirkkala #10777939
Osoite
Vesalantie 14, 33960 Pirkkala
Tilatyyppi
Tuotantotilaa
1000 m2
Muuta
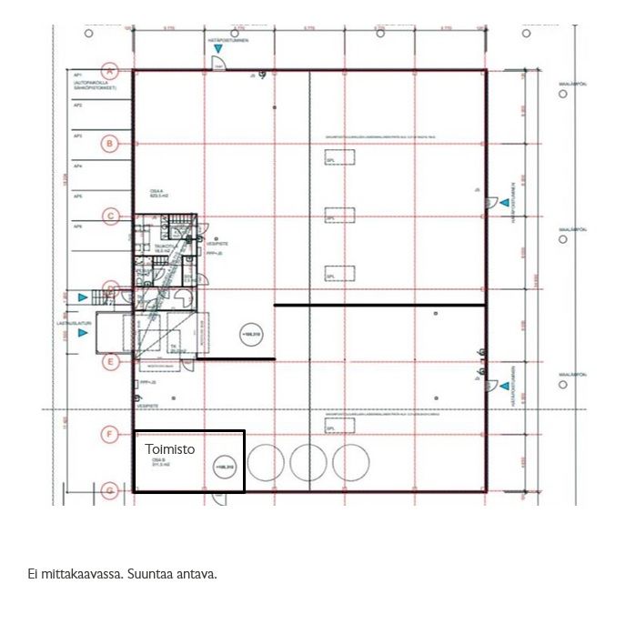
Vuokrataan noin 1000 m2 tuotanto- ja varastotila Pirkkalasta.
Korkea hallitila. Vapaa korkeus kantavaan palkkiin 7,9 m ja kattoon yli 10 m. Tilaan on yksi lastaustasku rekalle. Mahdollisuus rakentaa nosto-ovi myös maanpinnan tasoon.
Lattian kantavuus 1000 kg/m2.
Hallin yhteydessä tauko/sosiaalitilat sekä pienet toimistotilat.
Hyvin parkkitilaa ja erinomaiset liikenneyhteydet.
Lähellä useita lounasravintoloita.
Pyydä lisätietoja ja sovi esittely paikan päälle.
Sami Saraste
Myyntipäällikkö, LKV
sami.saraste@catella.com
050 3014 455
Tilanhakijalle palvelumme ovat maksuttomia.
Catella Property Oy on valtakunnallinen toimitilojen vuokraukseen ja myyntiin keskittynyt kiinteistönvälitysyritys.
Kysy paikallisilta ammattitaitoisilta välittäjiltämme myös muita välityksessämme olevia toimitilakohteita.
Välittäjiemme yhteystiedot ja lisää välitettäviä tilakohteita verkkosivuillamme: www.toimitilat.catella.fi.
Ota yhteyttä!
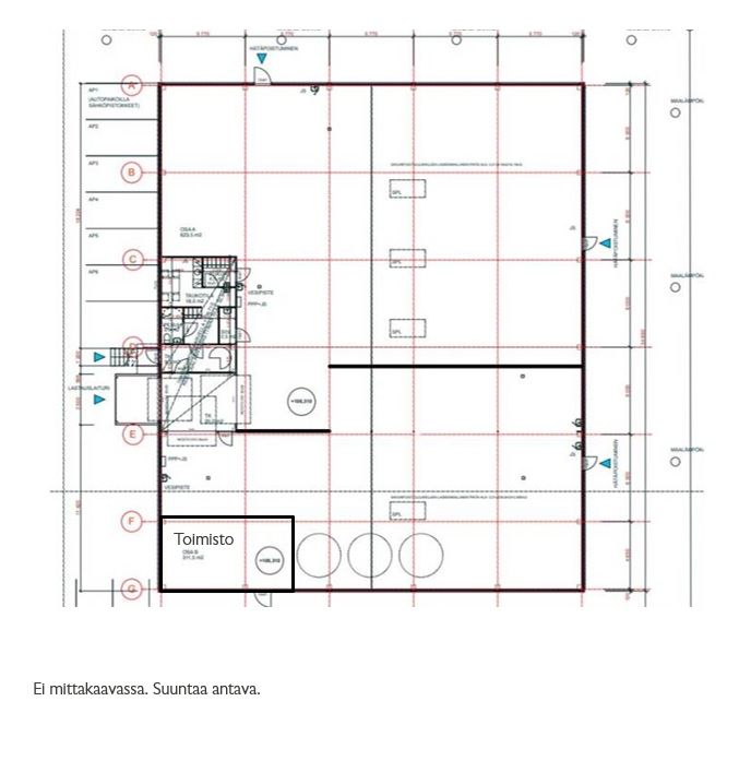
Korkea hallitila. Vapaa korkeus kantavaan palkkiin 7,9 m ja kattoon yli 10 m. Tilaan on yksi lastaustasku rekalle. Mahdollisuus rakentaa nosto-ovi myös maanpinnan tasoon.
Lattian kantavuus 1000 kg/m2.
Hallin yhteydessä tauko/sosiaalitilat sekä pienet toimistotilat.
Hyvin parkkitilaa ja erinomaiset liikenneyhteydet.
Lähellä useita lounasravintoloita.
Pyydä lisätietoja ja sovi esittely paikan päälle.
Sami Saraste
Myyntipäällikkö, LKV
sami.saraste@catella.com
050 3014 455
Tilanhakijalle palvelumme ovat maksuttomia.
Catella Property Oy on valtakunnallinen toimitilojen vuokraukseen ja myyntiin keskittynyt kiinteistönvälitysyritys.
Kysy paikallisilta ammattitaitoisilta välittäjiltämme myös muita välityksessämme olevia toimitilakohteita.
Välittäjiemme yhteystiedot ja lisää välitettäviä tilakohteita verkkosivuillamme: www.toimitilat.catella.fi.
Ota yhteyttä!
Vapautuu
Vapaa
Ota yhteyttä
Catella Property Oy
Hämeenkatu 13b A, 33100 Tampere
Näytä puhelinnumero
010 5220 100
Sami Saraste
Näytä puhelinnumero
050 3014 455
Pyydä lisätietoa
