Vuokrataan toimistotilat - Helsinki
John Stenbergin ranta 2, Siltasaari, 00530 Helsinki #10777938
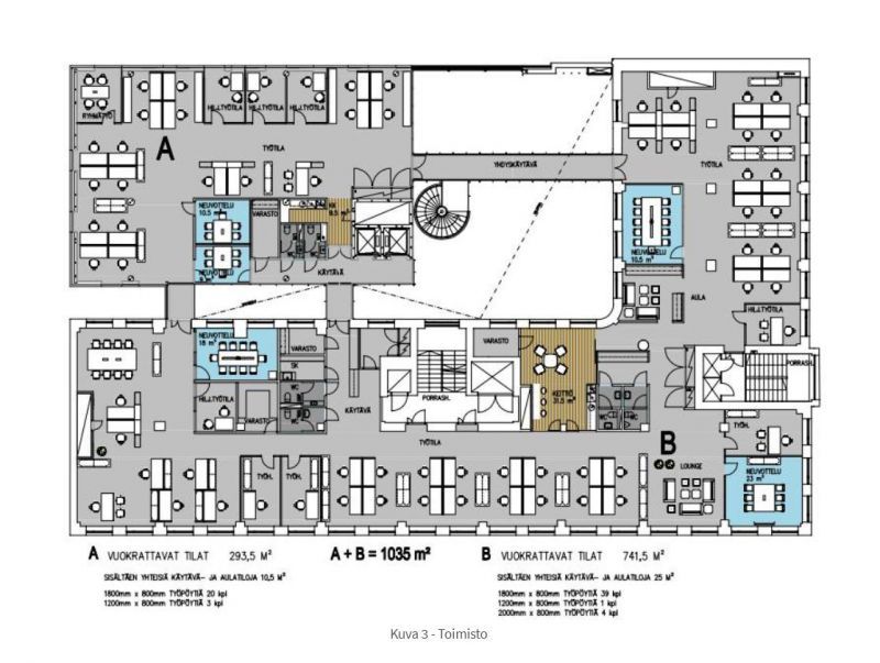
Täysin saneerattu, tyylikäs ja nykyaikainen toimistotila hienoilla näkymillä aiemmin Wärtsilän pääkonttorina toimineen toimistotalon 3:ssa kerroksessa. Tila rakennetaan pohjaratkaisultaan vuokralaiselle sopivaksi. Kiinteistössä aulapalvelu ja lounasravintola, sekä vuokrattavia neuvottelutiloja. Erinomaiset liikenneyhteydet. SOITA ja SOVI ESITTELY! Vuokrauspalvelumme on tilanhakijoille maksuton.
Osoite
John Stenbergin ranta 2, 00530 Helsinki
Tilatyyppi
Toimistotilaa
742 m2
Pohjapiirros
Kiinteistö
Toimistotalo
Sijainti
Siltasaaren eteläranta, vieressä Hotel Hilton.
Ympäristö
Merellinen
Pysäköinti
Autohalli
Palvelut
Hakaniemen tori.
Vapautuu
Heti
Kerros
3 / 8
Energiatehokkuusluokka
Ei lain edellyttämää energiatodistusta
Näkyvällä paikalla
Hissi
Ota yhteyttä
Senaatin Notariaatti Oy LKV
Lämmittäjänkatu 4 A
FIN-00880 Helsinki
Tel:
Näytä puhelinnumero
+358 9 7745 100
Pyydä lisätietoa
