Vuokrataan toimistotilat - Helsinki
Rahtarinkatu 5, Vuosaari, 00980 Helsinki #10777851
Uutta toimistotilaa Helsingin Vuosaaressa.
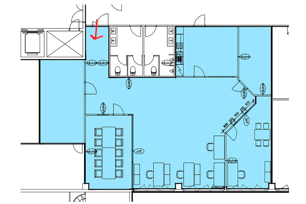
Tämä siisti 194m2 toimistotila sijaitsee kiinteistön 3. kerroksessa. Toimistossa on kaksi työhuonetta, neuvotteluhuone sekä avotilaa. Tilaan kuuluu oma keittiö, wc-tilat ovat toimiston ulkopuolella. Toimistossa on jäähdytys, CAT6-kaapelointi ja valokuitu. Vuokrattavissa myös hallitilaa. Kuvat ovat yleiskuvia kiinteistön toimistotiloista.
Rahtarinkatu 5 eli Vuosaaren Rahtarinpuisto on moderni varasto- ja teollisuuskiinteistö Vuosaaren satamassa, johon on hyvät kulkuyhteydet Kehä III pitkin. Sijainti on erinomainen maahantuontiin ja maastavientiin keskittyneille yrityksille. Tällä hetkellä kiinteistössä mm. logistiikka- ja kuljetusalan toimijoita.
Kiinteistö on rakennettu vuonna 2009 ja sen tilat ovat nykyaikaisten vaatimusten mukaisia.
Piha-alue on asfaltoitu. Palveluina kiinteistössä mm. lounasravintola ja erikseen vuokrattavissa olevat edustustilat.
Kysy lisää numerosta 044 723 4700 tai info@bref.fi. Palvelumme on tilanhakijoille ilmainen.
Bureau Real Estate Finland Oy
Lars Sonckin kaari 16, 02600 Espoo
Näytä puhelinnumero
0447234700
Bureau Real Estate Finland Oy
https://www.bref.fi