Vuokrataan toimistotilat - Helsinki
Itämerenkatu 3, Ruoholahti, 00180 Helsinki #10777834
Laadukasta toimitilaa Ruoholahdesta
Osoite
Itämerenkatu 3, 00180 Helsinki
Tilatyyppi
Toimistotilaa
368 m2
Muuta
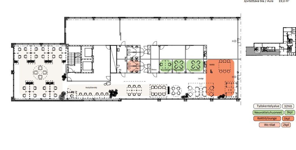
Vuokrataan 368m2 muuntojoustava toimistotila Ruoholahdesta. Tilan pohjaratkaisu voidaan suunnitella tulevan vuokralaisen toiveiden mukaisesti. Tila saneerataan laadukkailla ja vastuullisilla materiaaleilla. Itämerenkatu 3 on saneerattu 2019, jolloin nykyaikaan tuotiin niin talotekniikka kuin pinnat ja tehtiin julkisivusaneeraus.
Vuokralaisia palvelee loistava ravintola Pantry. Kellarikerroksessa on kuntosali, suihku- ja saunatilat sekä lisäksi pysäköinti. Ruoholahden erinomaiset palvelut ovat kivenheiton päässä: metro, useat ratikkalinjat ja Ruoholahden kauppakeskus.
Kuvat ovat yleiskuvia kiinteistöstä sekä esimerkkejä asiakkaille tehdyistä toteutuksista.
Tervetuloa tutustumaan, varaathan välittäjältä oman esittelyaikasi. Kysy myös muista vaihtoehdoista - osa kohteistamme on hiljaisessa markkinoinnissa. Palvelumme on tilanhakijalle veloitukseton!
Vuokralaisia palvelee loistava ravintola Pantry. Kellarikerroksessa on kuntosali, suihku- ja saunatilat sekä lisäksi pysäköinti. Ruoholahden erinomaiset palvelut ovat kivenheiton päässä: metro, useat ratikkalinjat ja Ruoholahden kauppakeskus.
Kuvat ovat yleiskuvia kiinteistöstä sekä esimerkkejä asiakkaille tehdyistä toteutuksista.
Tervetuloa tutustumaan, varaathan välittäjältä oman esittelyaikasi. Kysy myös muista vaihtoehdoista - osa kohteistamme on hiljaisessa markkinoinnissa. Palvelumme on tilanhakijalle veloitukseton!
Vapautuu
Kysy
Rakennusvuosi
1998
Kerros
2
Ota yhteyttä
Tuloskiinteistöt Oy
Rikhardinkatu 2 B 5, 00130 Helsinki
Näytä puhelinnumero
(09) 6841 620
Nina Meyke
Commercial Real Estate Advisor
Näytä puhelinnumero
+358 50 466 1519
Otto Ahtola
Commercial Real Estate Advisor
Näytä puhelinnumero
+358 40 042 2830
Pyydä lisätietoa
