Vuokrataan toimistotilat - Espoo
Tarvonsalmenkatu 17, Perkkaa, 02600 Espoo #10777811
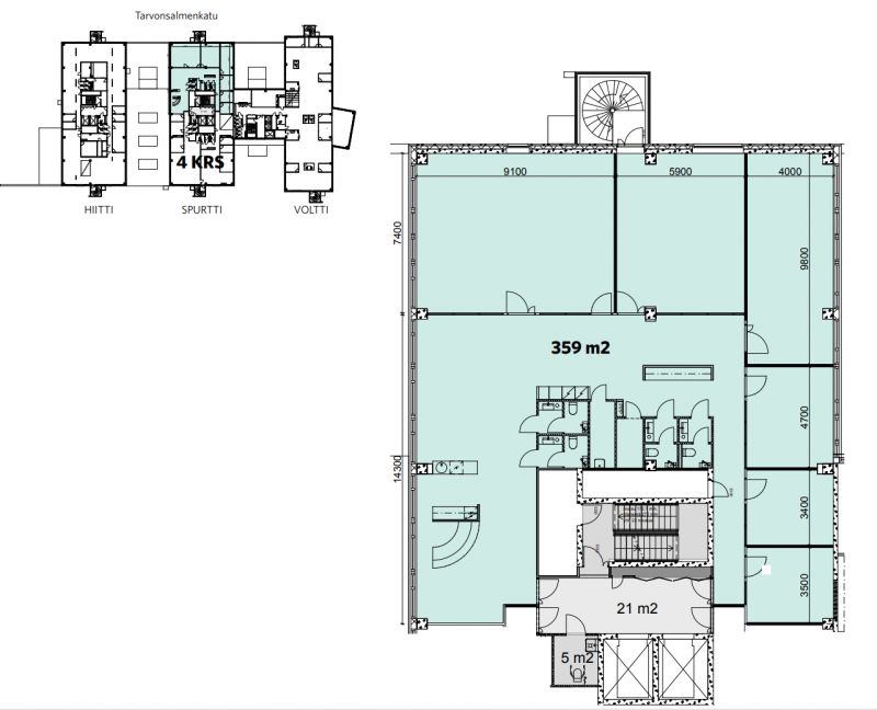
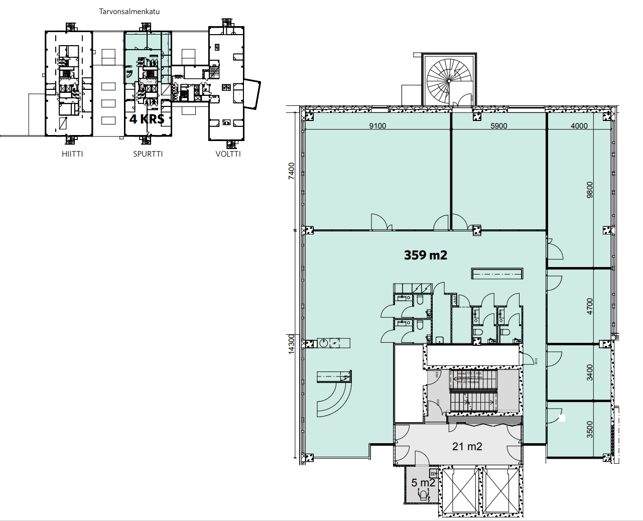
Avara ja valoisa 4.kerroksen Spurtti-talon kombitoimisto, joka muokataan käyttäjän tarpeiden mukaan avo-, huone- tai kombitoimistoksi. Huonelämpötilan ohjaus on integroitu ilmanvaihtoon, lämmitykseen ja jäähdytykseen sekä tilan läsnäolotietoon. Lisäksi ilmanvaihdon tarpeenmukaisuuteen on kiinnitetty erityistä huomiota. Huom! Sisäkuvat ovat yleiskuvia kiinteistön tiloista, eivätkä välttämättä ko. tilasta. Ota yhteyttä ja sovi esittely, palvelumme on tilanhakijoille ilmainen.
Osoite
Tarvonsalmenkatu 17, 02600 Espoo
Tilatyyppi
Toimistotilaa
359 m2
Tilajako
Jaettavissa
Pohjapiirros
Kiinteistö
Derby Business Park tarjoaa poikkeuksellisen energiatehokkaita toimitiloja Turunväylän ja Kehä I:n välissä. LEED Platinum sertifikaatin arvoinen kokonaisuus on saavutettu noudattamalla erittäin tiukkoja ympäristökriteerejä niin yrityspuiston sijainnin osalta, sen kokonaissuunnittelussa ja käytössä
Vapautuu
Heti
Kerros
4
Energiatehokkuusluokka
Ei lain edellyttämää energiatodistusta
Jaettavissa
Ota yhteyttä
Senaatin Notariaatti Oy LKV
Lämmittäjänkatu 4 A
FIN-00880 Helsinki
Tel:
Näytä puhelinnumero
+358 9 7745 100
Pyydä lisätietoa
