Vuokrataan toimistotilat, tuotantotilat - Oulu
Nuottasaarentie 5, Limingantulli, 90400 Oulu #10777787
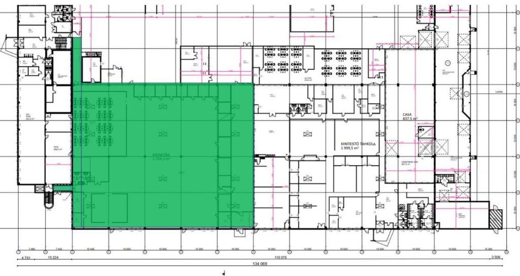
Tuotanto/toimistotilaa Nuottasaarentieltä
Osoite
Nuottasaarentie 5, 90400 Oulu
Tilatyyppi
Toimistotilaa
2204 m2
Tuotantotilaa
2204 m2
Yhteensä
2204 m2
Muuta
Vuokrataan 2204m2 tuotanto- ja toimistotilaa hyvällä sijainnilla.
Tila on hyväkuntoinen ja soveltuu moneen tarkoitukseen. Sitä on mahdollista myös laajentaa. Pihassa on runsaasti pysäköintitilaa.
Tervetuloa tutustumaan, varaathan välittäjältä oman esittelyaikasi. Voit kysyä meiltä myös muita sopivia vaihtoehtoja, kauttamme löydät juuri Teidän tarpeisiinne sopivat tilat.
Palvelumme on tilanhakijalle veloitukseton!
Tila on hyväkuntoinen ja soveltuu moneen tarkoitukseen. Sitä on mahdollista myös laajentaa. Pihassa on runsaasti pysäköintitilaa.
Tervetuloa tutustumaan, varaathan välittäjältä oman esittelyaikasi. Voit kysyä meiltä myös muita sopivia vaihtoehtoja, kauttamme löydät juuri Teidän tarpeisiinne sopivat tilat.
Palvelumme on tilanhakijalle veloitukseton!
Vapautuu
Kysy
Ota yhteyttä
Tuloskiinteistöt Oy
Rikhardinkatu 2 B 5, 00130 Helsinki
Näytä puhelinnumero
(09) 6841 620
Jorma Ryynänen
Commercial Real Estate Advisor LKV, LVV
Näytä puhelinnumero
+358 40 708 4064
Nina Meyke
Commercial Real Estate Advisor
Näytä puhelinnumero
+358 50 466 1519
Pyydä lisätietoa
