Vuokrataan toimistotilat - Kuopio
Toimisto 95 M² @ Savilahdentie 6 B, Savilahti, 70210 Kuopio #10777684
Toimisto
Osoite
Toimisto 95 M² @ Savilahdentie 6 B, 70210 Kuopio
Tilatyyppi
Toimistotilaa
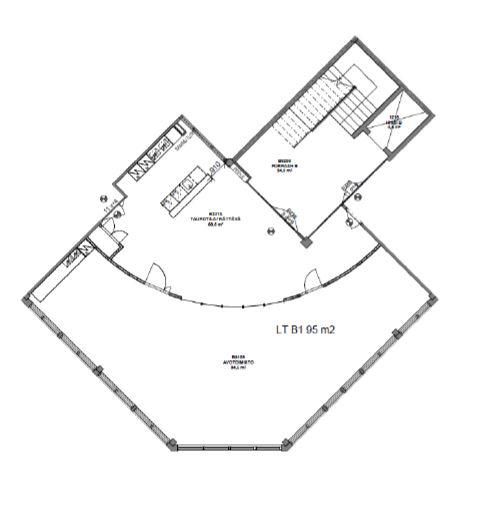
95 m2
Kiinteistö
Toimiva ja tyylikäs - Penthouse toimisto 95 m²
Toimistotila on juuri valmistunut täydellisestä remontista ja on muuttovalmiina.
Tämä Penthouse toimisto on todella upea ja avara kokonaisuus - avotoimisto.
Kaareva lasiseinä, kaksi käyntiovea ja upeat näkymät etelänsuuntaan luovat mahtavat työskentelyolosuhteet.
Sisäänkäynti on Tietoteknian pääovesta ja hissillä tai rappusia pitkin ylimpään kerrokseen. Toimisto on heti eteisaulan kohdalla.
Toimisto sopii hyvin asiakaspalveluun, asiakkaiden vastaanottotilaksi tai toimistoksi asiantuntijoille.
Tilassa on mm. avokeittiö, tyylikäs valaistus, koneellinen ilmanvaihto, viilennys, sälekaihtimet, kuituyhteydet, jne.
Huom! Eteisaulan lounge-tilassa on käytössäsi varusteltu avokeittiö.
Kiinteistö ja sijainti
Tietoteknian kiinteistö sijaitsee Savilahdessa Itä-Suomen Yliopiston vieressä osoitteessa Savilahdentie 6.
Pihaan voidaan autolla saapua Savilahdenkadun kautta tai suoraan pohjoisen suunnasta moottoritien uudelta rampilta pihaan.
Kiinteistön edessä on isot parkkialueet (myös edullinen sopimuspysäköinti) ja eikun pääovesta sisään ja hissillä ylös.
Bussipysäkit ovat kiinteistön nurkalla ja pyörätiet ohjautuvat turvallisesti kiinteistön pihaan.
Naapuritontilla on kauppakeskus Prisma.
Lounasravintola Food & Co. palvelee kiinteistöllä
Soita tai laita sähköpostia ja sovitaan tilan katselmus!
Toimistotila on juuri valmistunut täydellisestä remontista ja on muuttovalmiina.
Tämä Penthouse toimisto on todella upea ja avara kokonaisuus - avotoimisto.
Kaareva lasiseinä, kaksi käyntiovea ja upeat näkymät etelänsuuntaan luovat mahtavat työskentelyolosuhteet.
Sisäänkäynti on Tietoteknian pääovesta ja hissillä tai rappusia pitkin ylimpään kerrokseen. Toimisto on heti eteisaulan kohdalla.
Toimisto sopii hyvin asiakaspalveluun, asiakkaiden vastaanottotilaksi tai toimistoksi asiantuntijoille.
Tilassa on mm. avokeittiö, tyylikäs valaistus, koneellinen ilmanvaihto, viilennys, sälekaihtimet, kuituyhteydet, jne.
Huom! Eteisaulan lounge-tilassa on käytössäsi varusteltu avokeittiö.
Kiinteistö ja sijainti
Tietoteknian kiinteistö sijaitsee Savilahdessa Itä-Suomen Yliopiston vieressä osoitteessa Savilahdentie 6.
Pihaan voidaan autolla saapua Savilahdenkadun kautta tai suoraan pohjoisen suunnasta moottoritien uudelta rampilta pihaan.
Kiinteistön edessä on isot parkkialueet (myös edullinen sopimuspysäköinti) ja eikun pääovesta sisään ja hissillä ylös.
Bussipysäkit ovat kiinteistön nurkalla ja pyörätiet ohjautuvat turvallisesti kiinteistön pihaan.
Naapuritontilla on kauppakeskus Prisma.
Lounasravintola Food & Co. palvelee kiinteistöllä
Soita tai laita sähköpostia ja sovitaan tilan katselmus!
Vapautuu
Kysy
Kerros
Ylinkerros
Ota yhteyttä
LogisTila Oy
Ankkuritie 1, 70460 KUOPIO
Timo Puustinen
Näytä puhelinnumero
0400 33 00 30
Pyydä lisätietoa
