Vuokrataan toimistotilat - Helsinki
Hermannin Rantatie 8, Kalasatama, 00580 Helsinki #10777606
Uutta toimistotilaa Rantatie Business Parkista, Helsingin Kalasatamasta.
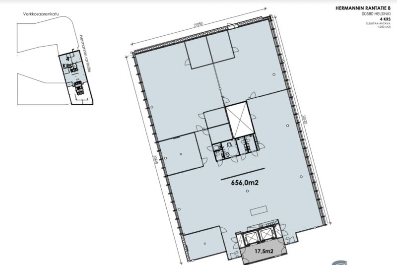
Tämä 656,5 m2 kokoinen tila sijaitsee Kasvu-talon 4. kerroksessa. Tila koostuu avotilasta, työhuoneista, kahdesta neuvottelu- ja varastotilasta, sekä sosiaalitiloista.
Rantatie Business Park on moderni ja tyylikäs kokonaisuus Kalasataman kehittyvällä alueella. Toimitilat ovat helposti muunneltavissa vuokralaisen tarpeiden mukaan. Kiinteistössä on tarjolla monipuoliset palvelut, kuten aulapalvelu, siivous, vartointi, kokoustilat, remontti- ja sisustussuunnittelupalvelu, lounasravintola, kahvio sekä juhla- ja cateringpalvelut.
Kysy lisää numerosta 044 723 4700 tai info@bref.fi. Palvelumme on tilanhakijoille ilmainen.
Toimiston vuokraan sisältyvät kiinteistön hoito, kiinteistövakuutus, yhteisten tilojen siivous sekä puku- ja suihkuhuoneet kiinteistön kellarissa.
Hissi
Bureau Real Estate Finland Oy
Lars Sonckin kaari 16, 02600 Espoo
Näytä puhelinnumero
0447234700
Bureau Real Estate Finland Oy
https://www.bref.fi