Vuokrataan toimistotilat - Helsinki
Kasarmikatu 44, Keskusta, 00130 Helsinki #10777602
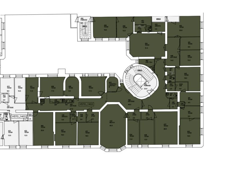
Vuokrataan 4. kerroksen toimistotila Rikhardinkadun ja Kasarmikadun kulmasta. Tila on remontoitavissa huonetoimistoksi tai monitoimitilaksi seuraavan vuokralaisen tarpeiden mukaan. Tilassa suihku- ja wc-tilat.
Helsingin Kasarmikatu 44 on upea toimistokohde vetovoimaisella sijainnilla Kaartinkaupungin alueella Esplanadin puiston läheisyydessä. Kohteessa on pääasiassa toimistotilaa sekä muutama kivijalassa sijaitseva liiketila. Alakerrassa toimii viihtyisä ravintola.
Lisätietoja soita 020 730 4530 tai info@repoint.fi. Palvelumme on tilanhakijalle ilmainen.
Repoint Toimitilat Oy
Itälahdenkatu 22 B, 00210 Helsinki
Näytä puhelinnumero
020 730 4530
Lisätietoja soita Näytä puhelinnumero 020 730 4530 tai info@repoint.fi
https://repoint.fi/